
Дизайнеры интерьера
5
·
10 отзывов
Кирпич в квартире
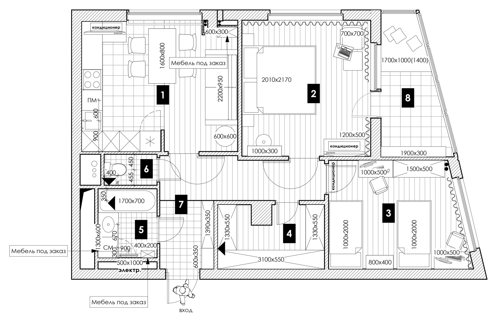
Общая площадь квартиры 71 кв. м. В ходе перепланировки мы немного расширили кухню-гостиную (1), чуть сдвинув стену в сторону. Перенесли дверной проём в спальне (2) вправо и чуть уменьшили потенциальную детскую (3), чтобы сделать просторную гардеробную (4) в коридоре и избежать необходимости ставить шкафы в жилых комнатах. Детскую не визуализировали, потому что детей у заказчиков пока нет.
Другие фотографии в проекте
Вопросы к фото 0
Задайте вопрос
Вам ответят эксперты. Пришлем уведомление, когда вам ответят




