logo
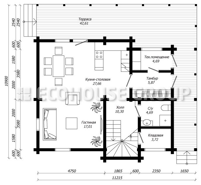
Хотланс 190м2

Другие фотографии в проекте Хотланс 190м2

Хотланс 190м2
Хотланс 190м2

Вопросы к фото 0

Задайте вопрос

Вам ответят эксперты. Пришлем уведомление, когда вам ответят

Традиционный