
Дизайнеры интерьера
0
Хостел на Фонтанке
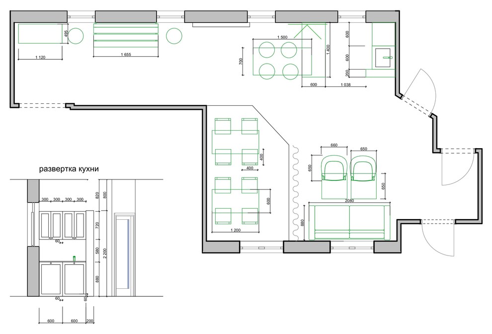
План с размерами, расстановкой мебели и разверткой кухни.
Другие фотографии в проекте
Вопросы к фото 0
Задайте вопрос
Вам ответят эксперты. Пришлем уведомление, когда вам ответят

Дизайнеры интерьера
0
План с размерами, расстановкой мебели и разверткой кухни.
Другие фотографии в проекте
Вам ответят эксперты. Пришлем уведомление, когда вам ответят