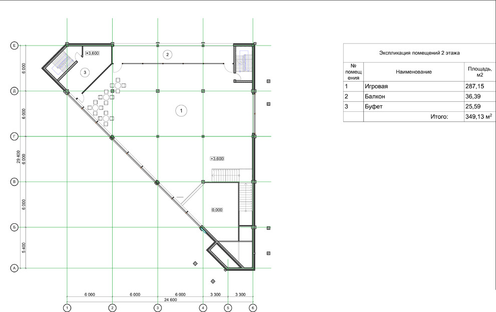
план 2 этажа

Другие фотографии в проекте Кафе на пр. Патриотов

Вопросы к фото 0

Задайте вопрос

Вам ответят эксперты. Пришлем уведомление, когда вам ответят

Воронеж, план кафе