
Дизайнеры интерьера
3.93
·
10 отзывов
Измайлово
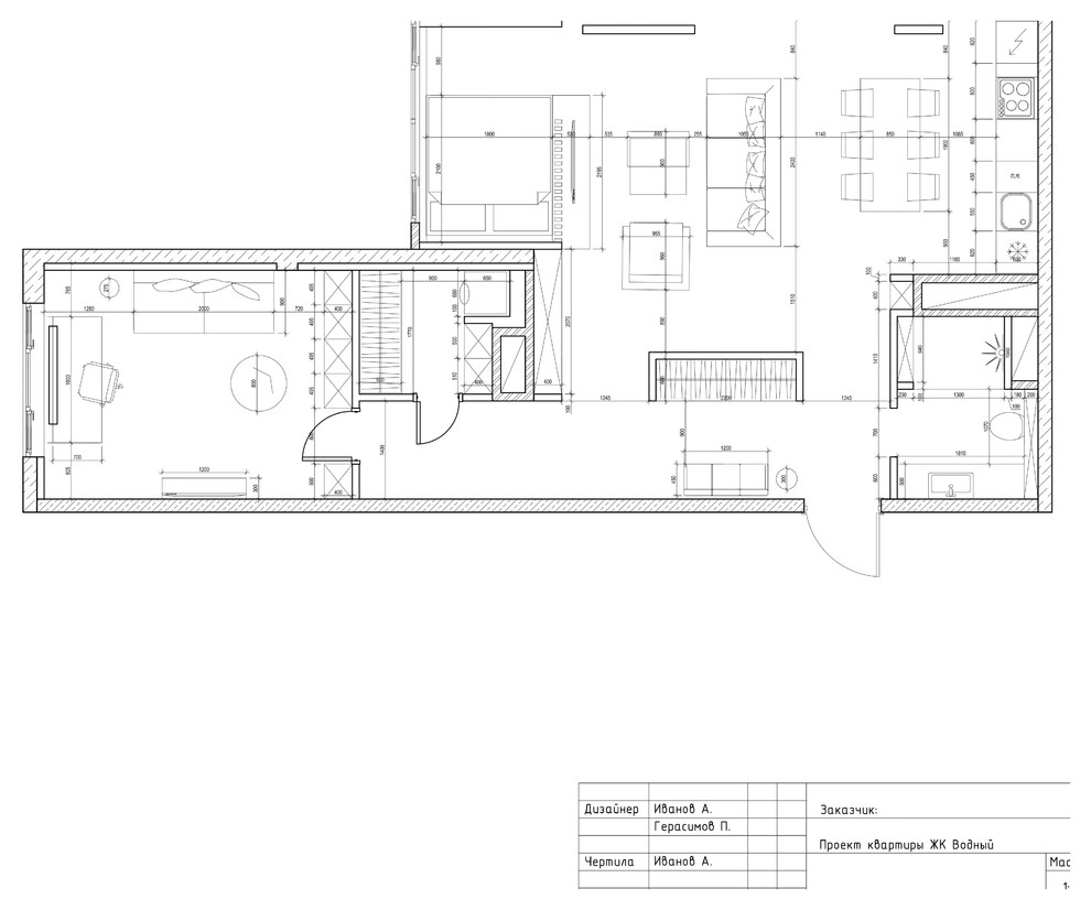
Дизайн интерьера квартиры в ЖК Измайлово в Москве, площадью 72 м.кв., был выполнен в современном стиле для активной семьи из трех человек. . . Три основные зоны - кухня-столовая-гостиная, спальня и детская для дочери-студентки 18 лет, - были созданы в едином объединенном пространстве бывшей двухкомнатной квартиры. . . Отделка характерна для современного стиля - покраска стен, паркетная доска, керамогранит и деревянные рейки. . . Цветовое решение выполнено в нейтральных сложных оттенках коричневого и серого цветов, кроме детской комнаты, где использовались яркие голубой и желтый. . . Освещение многоплановое и мультифункциональное: это встроенные светильники, а также светодиодная лента, торшеры, люстра и настольные лампы. . . Предметов мебели не так уж много, и, в основном, она отечественного производства, а вот многочисленные стеллажи и шкафы как системы хранения выполнены на заказ. . . Зеленые растения привносят нотку свежести в интерьер, а элементы латуни используются как модный декор.
Другие фотографии в проекте
4 раза сохранено в статьи и альбомы идей:
Добавил(-а) в альбом: Прихожая
Добавил(-а) в альбом: Панели и выпуклости
Добавил(-а) в альбом: Идеи пользователя Федот
Вопросы к фото 0
Задайте вопрос
Вам ответят эксперты. Пришлем уведомление, когда вам ответят




