
Дизайнеры интерьера
4.91
·
10 отзывов
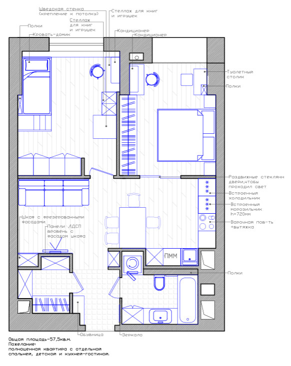
Из двушки в трешку с кухней-гостиной
Перепланировка квартиры с организацией кухни-гостиной без окна, где инсоляция осуществляется за счет стеклянной двери между спальней с окном.
Другие фотографии в проекте
Вопросы к фото 0
Задайте вопрос
Вам ответят эксперты. Пришлем уведомление, когда вам ответят




