
Дизайнеры интерьера
5
·
10 отзывов
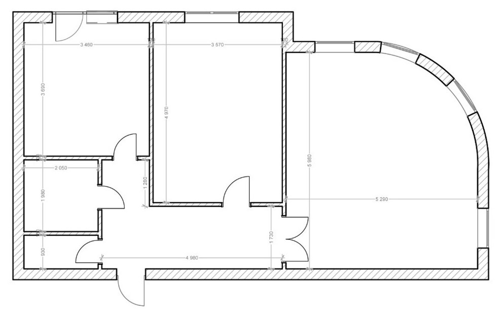
Из двушки в трешку
Первоначальная планировка предполагала собой двухкомнатную квартиру. Необходимо было организовать пространство для родителей с 2-мя детьми.
Другие фотографии в проекте
Вопросы к фото 0
Задайте вопрос
Вам ответят эксперты. Пришлем уведомление, когда вам ответят




