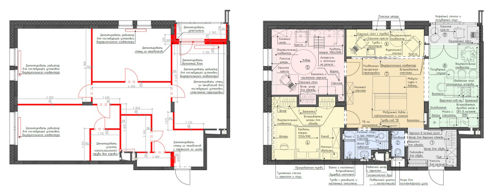
Перепланировка квартиры

Другие фотографии в проекте Интерьер квартиры в стиле джапанди

Вопросы к фото 0

Задайте вопрос

Вам ответят эксперты. Пришлем уведомление, когда вам ответят

Москва, Современный, ванная, гостиная, детская, дизайн интерьера, домашний офис, кухня-столовая, лоджия, открытая планировка, планировочное решение, прихожая, спальня, туалет, чертежи

Интерьер квартиры в стиле джапанди

Квартира для семьи с одним ребенком. . . Была задача объединить между собой общественные пространства и максимально полезно использовать площадь. . . Просторная и открытая гостиная также служит зоной транзита между другими помещениями. . . Зона домашнего офиса отделяется от гостиной прозрачной перегородкой. . . В спальне ничего не отвлекает от релакса и отдыха.

Вопросы к фото 0