
Дизайнеры интерьера
5
·
10 отзывов
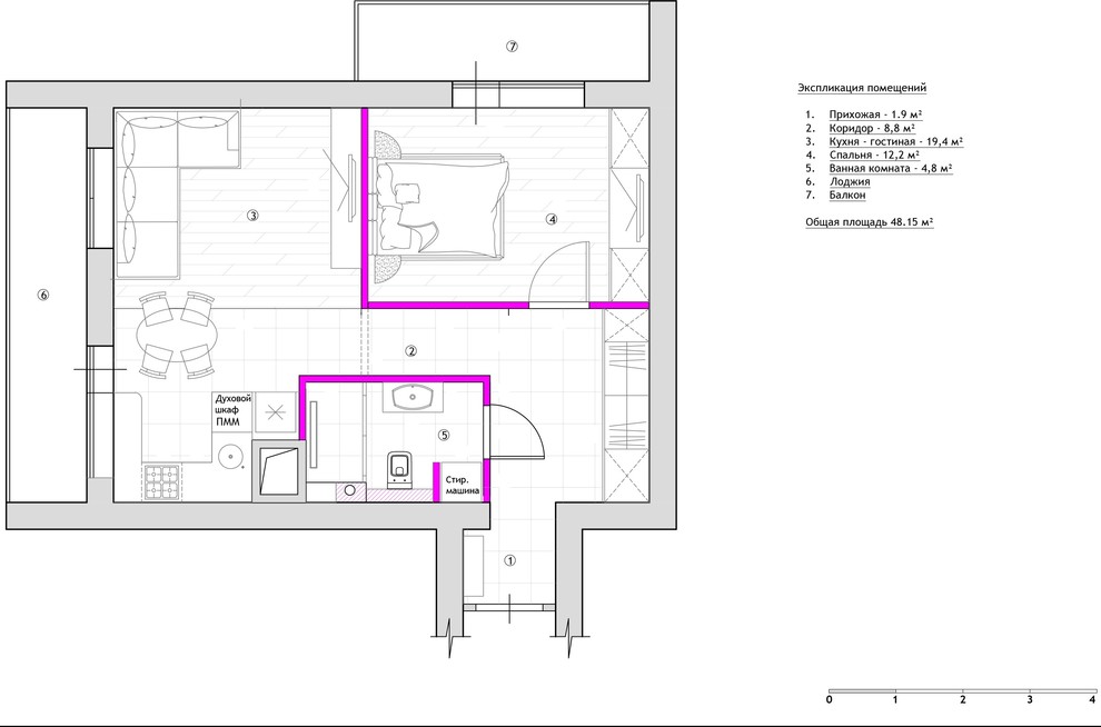
Интерьер квартиры в современном стиле | Колпино
Современная квартира для респектабельного клиента. . Весь интерьер выдержан в едином стиле, особое внимание было уделено подбору материалов. Вся мебель изготовлена по моим эскизам. . Реализация июнь - декабрь 2017 г.
Другие фотографии в проекте
Вопросы к фото 0
Задайте вопрос
Вам ответят эксперты. Пришлем уведомление, когда вам ответят




