
Архитекторы
5
·
10 отзывов
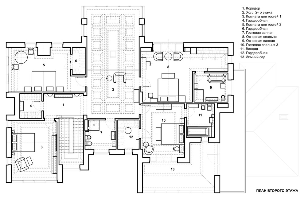
Интерьер дома со средневековым порталом
Когда мы начали работать над этим интерьером у нас было две отправных точки: готовый дом в стиле "Райта" и старинные французские стулья 16 века. Из этого родилась идея интерьера в стиле музея. С совмещением старинных элементов с ультра современными. Заказчики, которые изначально были настроены на классический интерьер, быстро согласились с нашей концепцией и помогли создать интерьер с необычными деталями и сочетаниями.
Другие фотографии в проекте
Вопросы к фото 0
Задайте вопрос
Вам ответят эксперты. Пришлем уведомление, когда вам ответят
Гостиная, Контемпорари, Москва, Ужин на открытом воздухе/альфреско
Похожие фотографии

Дизайн интерьера коттеджа Троицк
Дизайн интерьера коттеджа Троицк
Екатерина Архдетали

Проект квартиры г Мытищи
Лилия Отрокова

AQUA
Свежая идея для дизайна: идея дизайна в современном стиле - отличное фото интерьера
Вероника Ильина

AQUA
Пример оригинального дизайна: идея дизайна в современном стиле
Вероника Ильина

Тропическая рокировка
Свежая идея для дизайна: гостиная комната в современном стиле с бежевыми стенами, темным паркетным полом, телевизором на стене и коричневым полом - отличное фото интерьера
DONOLUX

Дом для молодой семьи
Пример оригинального дизайна: идея дизайна в современном стиле
Ольга Мазанова

Дизайн интерьера трехкомнатной квартиры
Пример оригинального дизайна: парадная, объединенная, серо-белая гостиная комната среднего размера в современном стиле с бежевыми стенами, полом из ламината, телевизором на стене, зоной отдыха, белым полом и обоями на стенах без камина
Студия Дизайнов

Уютная однушка для молодого человека
Стильный дизайн: гостиная комната в современном стиле - последний тренд
Анастасия Спирина

гостиная
Пример оригинального дизайна: объединенная гостиная комната среднего размера, в белых тонах с отделкой деревом в современном стиле с с книжными шкафами и полками, синими стенами, темным паркетным полом, стандартным камином, фасадом камина из камня, зоной отдыха и коричневым полом
Анна Калягина

ЖК Арт
На фото: гостиная комната в современном стиле
Никита Шаронов

Камин. КП "Бристоль"
На фото: гостиная комната в современном стиле с стандартным камином и фасадом камина из камня
Осыка Александр Андреевич





