
Вам ответят эксперты. Пришлем уведомление, когда вам ответят
Екатеринбург, интерьер квартиры, лофт, план квартиры, скандинавский стиль
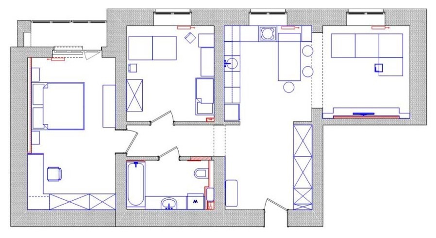
Молодая семья. Небольшая квартира с хорошей изначальной планировкой (конечно, кое-что переделали). Из пожеланий – скандинавский стиль с элементами лофта. Так как скандинавский стиль достаточно скучен в чистом виде для нас, избалованных модными кафе и дорогими спортзалами, более активно добавили стилистику лофта и очень ярко выделившегося из него в последнее время индустриального стиля. Все лаконично, логично, функционально, но не без «изюма».