
Архитекторы
5
·
10 отзывов
Индустриальный романтизм
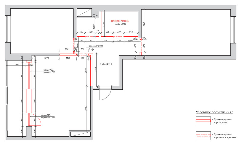
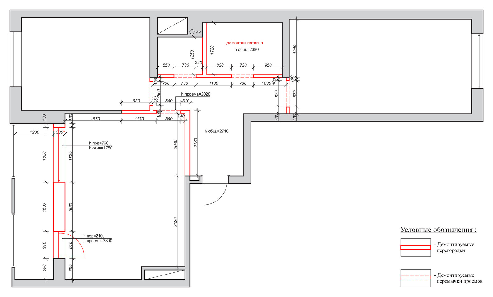
В проекте квартиры площадью 76 кв. м петербургский дизайнер Мария Василенко соединила жесткость и бескомпромиссность большого города с живой энергией природы. Следуя выбранному стилю, автор воссоздала атмосферу лофта: кирпичные стены, состаренный . деревянный пол и прожекторы имитируют старое . производственное помещение, обретшее новую жизнь в жилом интерьере. . Планировочные и декоративные решения, предложенные дизайнером, помогли раскрыть весь потенциал пространства. Парадную зону расширили за . счет присоединения лоджии: в результате в кухне по- . явилось место для барной стойки, о которой мечтала . хозяйка, а столовая-гостиная украсилась великолепными окнами в пол. Отказ от встроенных светильников в пользу трекового и накладного света позволил . сохранить исходную высоту потолков 2,7 м. В небольших по площади апартаментах удалось обустроить . две гардеробные и отдельный хозблок. Вход в гостевую комнату при этом переместился в зону домашнего кинотеатра, и дизайнер применила элегантное . решение, утопив потайную дверь в стене. . Все декоративные приемы работают на создание того . же образа — спокойного эргономичного жилого пространства. Минимум мебели, лаконизм форм и цвета настраивают на созерцание и отвлекают от суеты. . Смысловое поле интерьера расширяют интересные . стилевые «примеси», сменяющие друг друга в разных . помещениях: от хай-тека в ванной и минимализма в . спальне до элементов стрит-арта в декоре гостевой . комнаты. А в индустриальную жесткость черно-белой гаммы неожиданно врываются романтические . нотки: сочные вкрапления весенней листвы, распустившейся у «старой» кирпичной стены, ярко-зеленые барные стулья и живые растения, наполнившие . дом красками природы.
Другие фотографии в проекте
Вопросы к фото 0
Задайте вопрос
Вам ответят эксперты. Пришлем уведомление, когда вам ответят




