
Архитекторы
5
·
10 отзывов
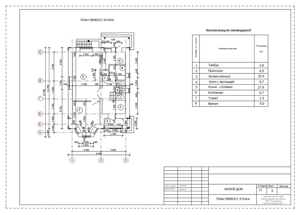
индивидуальный жилой дом. ул.Солидарности
план первого этажа. архитектурная часть. стадия проект
Другие фотографии в проекте
Вопросы к фото 0
Задайте вопрос
Вам ответят эксперты. Пришлем уведомление, когда вам ответят

Архитекторы
5
·
10 отзывов
план первого этажа. архитектурная часть. стадия проект
Другие фотографии в проекте
Вам ответят эксперты. Пришлем уведомление, когда вам ответят