logo
Проект_2

Другие фотографии в проекте Индивидуальные жилые дома в современной стилистике

Вопросы к фото 0

Задайте вопрос

Вам ответят эксперты. Пришлем уведомление, когда вам ответят

Казань, Контемпорари

Диляра Зайнутдинова
Смотреть профиль

0

отзывов

0

Рейтинг

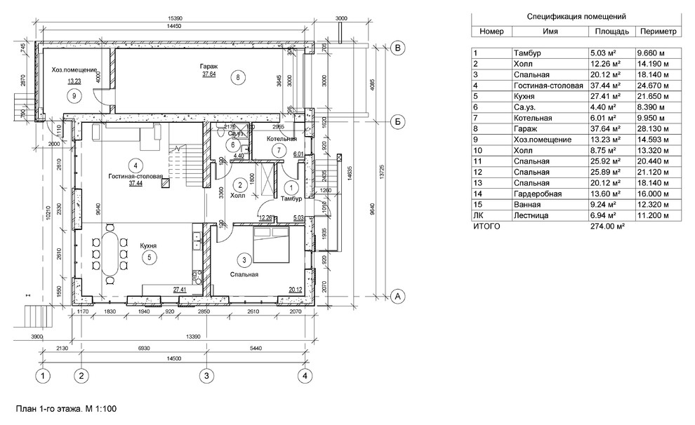
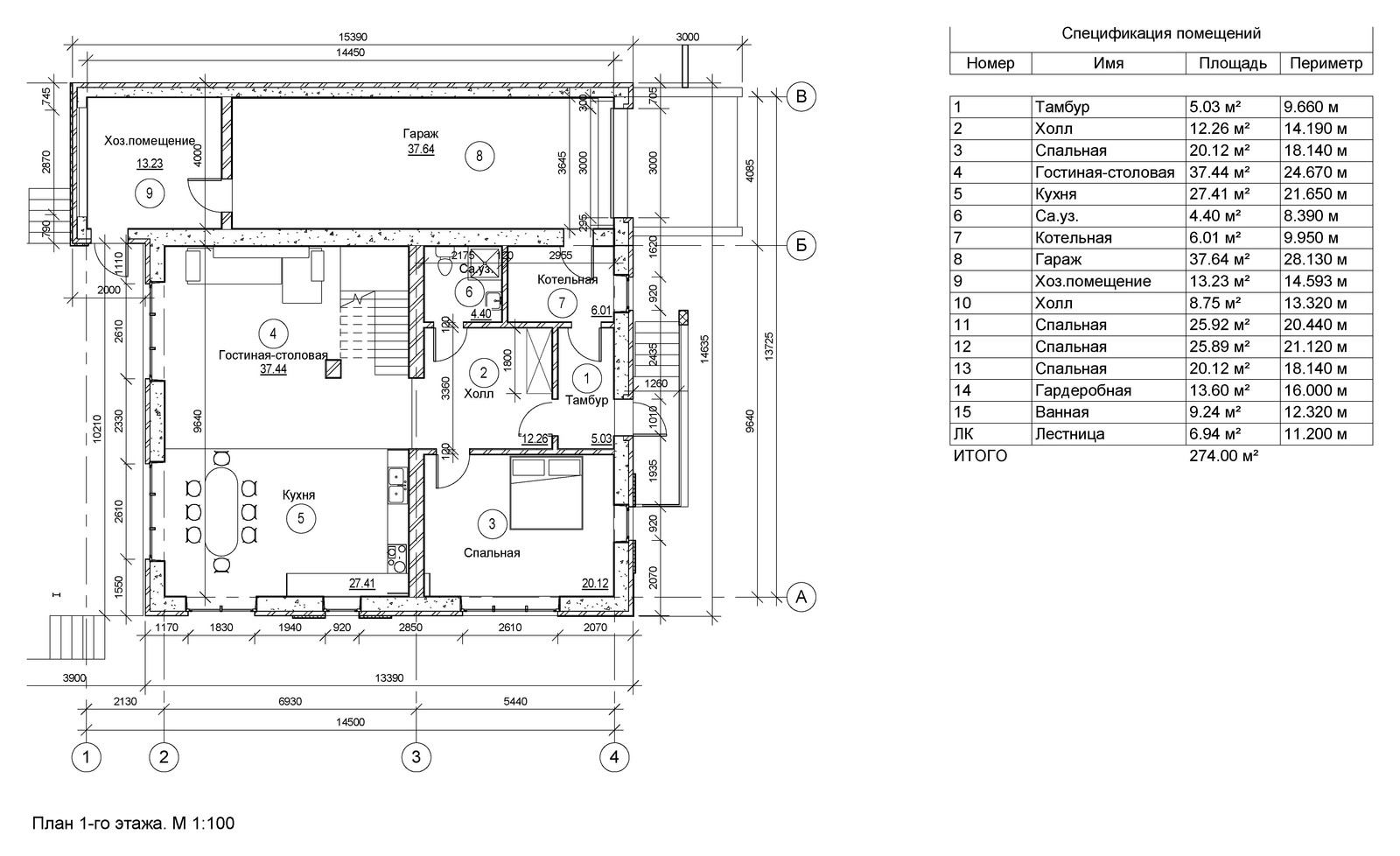
Индивидуальные жилые дома в современной стилистике

Этапы работы над объектом: . 1. Передача исходных материалов заказчиком . - Свидетельство на ЗУ (земельного участка) . - Кадастровый паспорт ЗУ . - Топосъёмка, М 1:500 . - Геологические изыскания (при сложных фундаментах) . 2. Выезд на место архитектора. Разработка 3-х эскизных вариантов. Согласование итогового варианта с заказчиком. . 3. Оплата заказчиком авансового платежа (50% от стоимости проектирования) . 4. Согласование с заказчиком "Опросного листа" . 5. Рабочий проект: . - Архитектурная часть . - Конструктивная часть . - Внутренняя инженерная часть (разделы отопление-вентиляция, водопровод-канализация, электрика (выполняется при разработке дизайн-проекта)) . - Наружные инженерные сети . 6. Проект благоустройства и озеленения участка . 7. Дизайн-проект . 8. Авторский надзор . 9. Передача документации в 4-х экземплярах на бумажном носителе и в электронном виде, в формате PDF. . .

Вопросы к фото 0