Идеальный баланс

Другие фотографии в проекте Идеальный баланс. 2017г.

Вопросы к фото 0

Задайте вопрос

Вам ответят эксперты. Пришлем уведомление, когда вам ответят

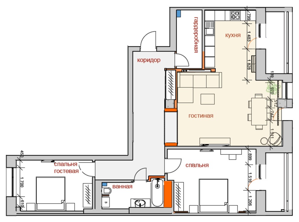
План с расстановкой мебели, Уфа

Ирина Комиссарова

Ирина Комиссарова

Дизайнеры интерьера

Смотреть профиль

0

отзывов

0

Рейтинг

Идеальный баланс. 2017г.

Часто бывает, что завершаешь работу и все вроде бы довольны, и заказчики, и их родственники, и друзья, а ты смотришь и думаешь: вот здесь не по проекту сделали, тут не в тот цвет покрасили, а запланированные декор и аксессуары на несбыточное потом оставили . Этот проект редкий случай, когда заказчики и сами, несомненно, обладая хорошим вкусом, не пытались сделать за меня мою работу и не отходили от идеи и концепции готового проекта. . Все пожелания были в основном по планировке квартиры. Их стилю жизни не подходило разделение квартиры на отдельные, тесные комнаты. Нужно было сделать единое пространство для общения и совместного времяпрепровождения. Для этого кухню объединили с гостиной, что позволило выделить место для большого обеденного стола. А для завтраков и лёгких перекусов двух человек достаточно было барной стойки. Дополнительным плюсом стало увеличение площади гардеробной комнаты, за счет организации одного общего входа в зону гостиной- столовой-кухни. . Еще нужно было оптимизировать расстановку мебели и сантехники в ванной комнате. Изначально, сама ванна стояла так, что зрительно удлиняла и без того непропорциональное помещение. Было решено центрально место, напротив входа, отдать под большую, полноценную раковину и зеркало с бра, а саму ванну развернуть перпендикулярно длинной стене и поставить слева от входа . . Еще одной из проблем были небольшие, на данную площадь, окна. Этот недостаток компенсировали зеркалами, которые добавили парадности столовой зоне и освещённости в коридор. Так же этот прием позволил уйти от банальной светлой цветовой гаммы и взять интересный, насыщенный тон для всей общественной зоны. К нему уже подбирали и диван небанального оттенка и цвет мебели под зону ТВ, сделанную по авторским эскизам. . В основной спальне использовали спокойные оттенки зелёного, подобранные под цвет панно с флористическими мотивами. А в редко используемую комнату, гостевую спальню, взяли яркие, жизнерадостные цвета. . И завершающим аккордом стали сложные по цвету и по форме портьеры, которые точно повторяли формы и цвета портьер в визуализациях комнат. . В этот интерьер было вложено много труда, но, именно, поэтому он получился настолько идеально сбалансированным. И в нем не хочется ничего менять, поправлять доделывать и переделывать, а хочется просто жить и наслаждаться жизнью. .

Вопросы к фото 0