Яркий дом в пригороде. 2016г.

Другие фотографии в проекте Яркий дом в пригороде. 2016г.

Вопросы к фото 0

Задайте вопрос

Вам ответят эксперты. Пришлем уведомление, когда вам ответят

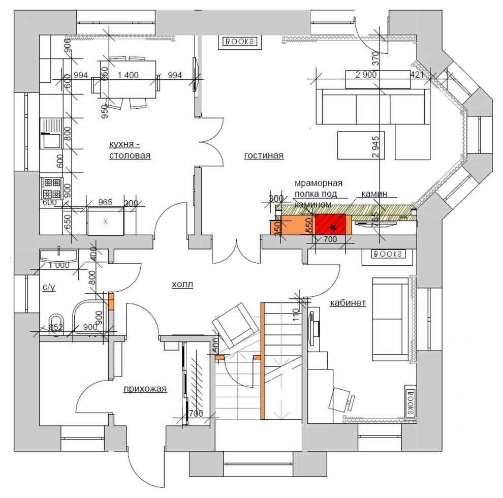
1 этаж, План с расстановкой мебели, Уфа

Ирина Комиссарова

Ирина Комиссарова

Дизайнеры интерьера

Смотреть профиль

0

отзывов

0

Рейтинг

Яркий дом в пригороде. 2016г.

Заказчики проекта- молодая, энергичная пара. Со множеством увлечений и активным образом жизни. Идею сделать проект в ярких, динамичных цветах они поддержали сразу. . Ярко- оранжевые стены кухни наполняют дом теплом и солнцем даже в самый хмурый день. В гостиной оранжевый введен деликатными акцентами диванных подушек и люстры. Центральное место там занимает камин с мраморным порталом и зона ТВ, сделанная на заказ по моим эскизам. . В кабинете насыщенные тона более спокойных , классических оттенков синего цвета. Что как раз позволяет сосредоточиться его хозяину на его многочисленных увлечениях и хобби. Панно с абстрактным рисунком несет двойную нагрузку: раздвигает небольшое пространство и позволяет отдохнут глазам после кропотливой работы по сборке моделей. . В основной спальне 2-го этажа я предложила обыграть ее нестандартную форму, с эркером , по максимуму и разместить там большую, круглую кровать. Роль тумб – выполняют комбинированные с зеркальными шкафами для одежды модули, сделанные по авторским чертежам. Цветовая гамма здесь задана фреской с пейзажным рисунком в легкой, аварельной технике. . В ванной комнате площадь помещения и наличие окна позволяла сделать не только утилитарную комнату, а полноценную зону релакса. Объемная раковина дополнена огромной столешницей из искусственного мрамора, часть которой используется как индивидуальные туалетные столики с большими зеркалами и светильниками. Угловую ванну с гидромассажем отделили от бытовой зоны и унитаза перегородкой с декоративными нишами. Настенную плитку выбрали отечественную, но крупноформатную и с эффектным рисунком травертина благородных оттенков шоколада. . В конечном результате, интерьер дома получился насыщенный цветом и деталями, но гармоничный и не перегруженный . . . . .

Вопросы к фото 0