
Дизайнеры интерьера
0
Яркая классика. Реализация
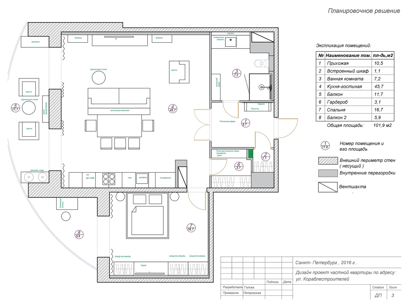
Квартира для супружеской пары. . . Планировочное решение этой квартиры осталось практически неизменным, мы только заменили второй с/у на 2 гардеробные, а прихожую отделили от жилой зоны перегородкой с двустворчатой дверью со стеклом. Это добавило парадности и в тоже время легкости для обоих пространств. (Вход в ванную комнату остался из прихожей по пожеланию заказчиков.) . . Из прихожей нам открывается вид на кухню-гостиную, где можно приятно отдохнуть на диване, провести время с семьей и друзьями за обеденным столом, а на просторной кухне готовить шедевры кулинарии. . Зона кухни-гостиной разделена функциональной консолью из мдф, в которой есть отделы для хранения и размещены розетки для удобной подзарядки телефонов. Единство комнаты подчеркивает фактурный пол и круглый кессон на потолке, который оформлен с помощью гипсового карниза со скрытой светодиодной подсветкой, создающей общее освещение. Столовая зона выделена с помощью подвесной люстры. . На утепленной лоджии в зоне гостиной располагаются шкафы для хранения и зона отдыха с удобными мягкими креслами и декоративным камином. . . Из гостиной мы попадаем в уютную спальню, где за мягким изголовьем кровати расположена фреска в античном стиле, символически разделяющая кровать на мужскую и женскую половины. А примыкающая к спальне комната оборудована в, так называемый, женский будуар, где располагается макияжный столик. . . Образ квартиры сложился почти сразу, после знакомства с заказчиками. На нас произвела впечатления хозяйка квартиры и мы, вдохновившись ее красотой и женственным образом, постарались отразить это в нашем проекте. Заказчики нам полностью доверяли в наших задумках и полагались на наш вкус, что очень способствовало процессу. . . Мы не придерживались конкретного стиля, но элементы современной классики преобладают в этом проекте. Лаконичные формы, классические элементы в отделке, современные дизайнерские предметы, яркие цвета, золотые детали в декоре- все это собралось в единый ансамбль. . -Вся корпусная и мягкая мебель, кроме обеденного стола, а также текстиль выполнены по нашим эскизам. . . -В ванной комнате зеркало обрамляет натуральный мрамор -Verde India от компании Нэнси. . -Фотообои с Давидом выполнены по нашему дизайну компанией Factura Wallpaper. . -Журнальный столик в гостиной Eichholtz. . -Настольные лампы в гостиной и бра в прихожей -Visual Comfort. . -В спальне, в качестве прикроватных тумб, мы использовали зеркальный кофейные столики Uttermost. . -Декоративное зеркало в гостиной Uttermost. .
Другие фотографии в проекте
Вопросы к фото 0
Задайте вопрос
Вам ответят эксперты. Пришлем уведомление, когда вам ответят




