
Архитекторы
5
·
10 отзывов
Hi-tech modern house 198+19+54
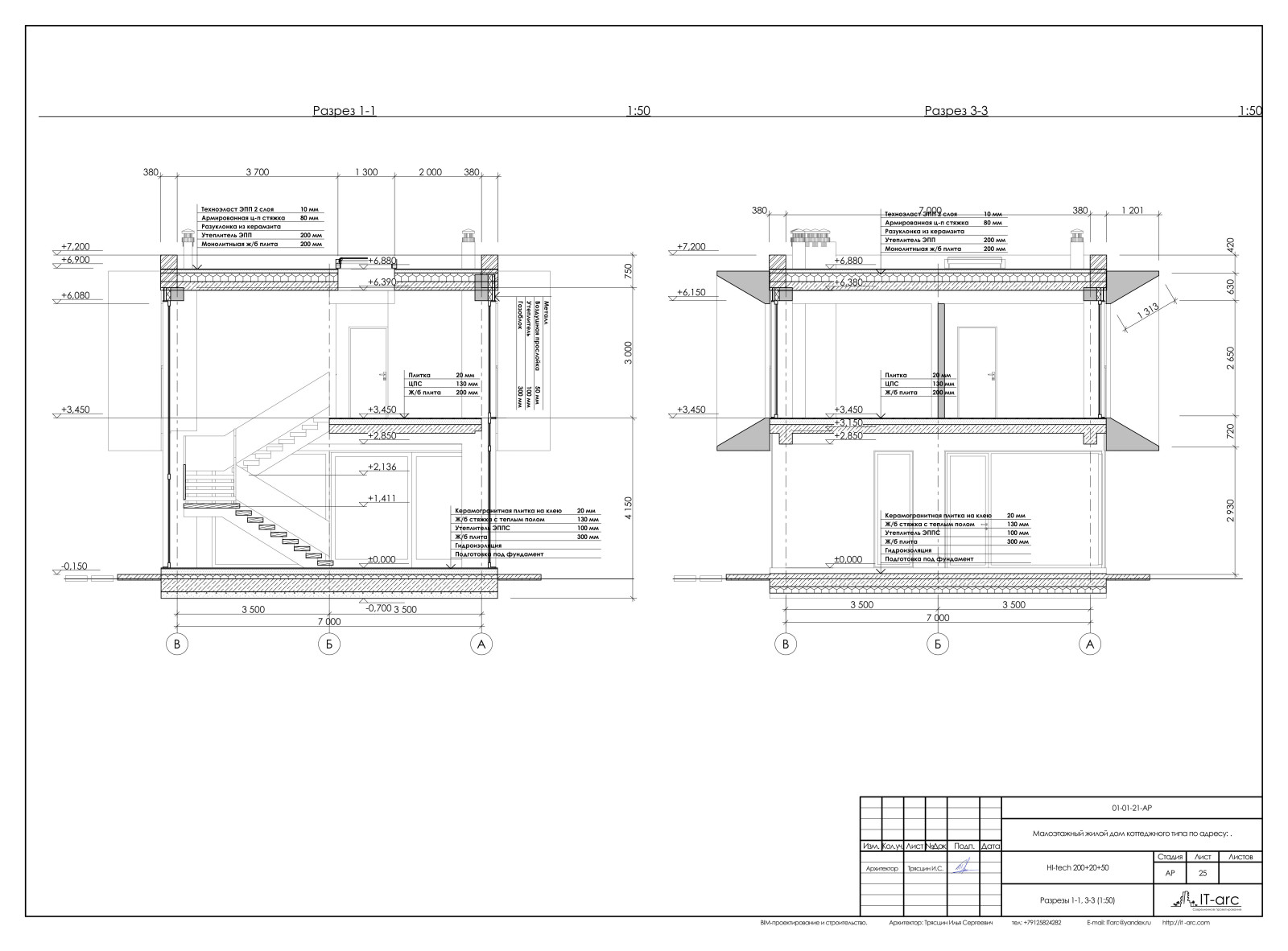
Общая площадь дома - 198 кв.м . Балконы- 19 кв.м . Террасы - 54 кв.м . . 2 Спальни + 2 Мастер спальни . 2 санузла . Кухня-Гостиная . Гардеробная с котельной . . Материал: железобетонный монолитный каркас и газосиликатный блок толщиной 300 мм . Отделка наружных стен: композитные фасады, металлический лист, рейки из термодревесины . __________________________ . . House - 198; . Balconies - 19 . Terraces - 54 . . 2 Bedrooms + 2 Master bedrooms . 2 bathrooms . Kitchen-Living Room . Dressing room with boiler room . . Material: reinforced concrete monolithic frame and gas silicate block 300 mm thick. . Exterior wall decoration: composite facades, sheet metal, thermowood slats .
Другие фотографии в проекте
Вопросы к фото 0
Задайте вопрос
Вам ответят эксперты. Пришлем уведомление, когда вам ответят




