
Проектирование и строительство
0
Гранд
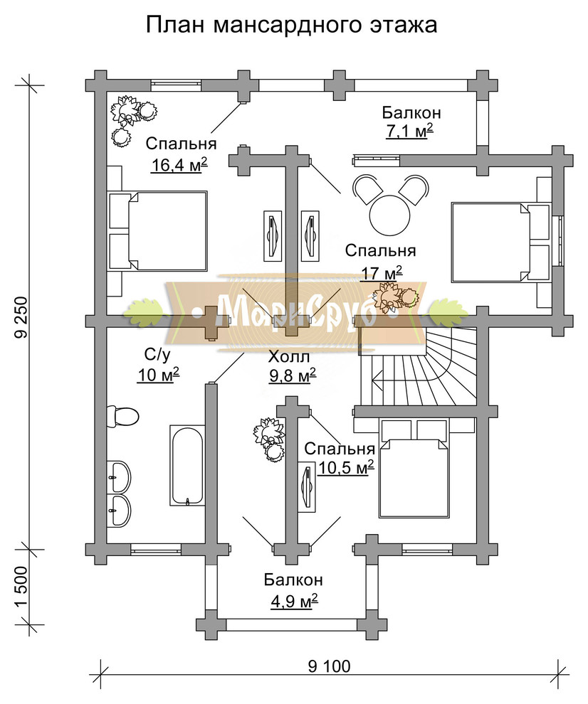
Просторный дом с одной спальней, большой гостиной с эркером, совмещенной с кухней-столовой на первом этаже. На втором этаже расположены 3 спальни, каждая из которых имеет свой выход на балкон. . . Общая площадь 155,8 кв.м. . Жилая площадь 131,8 кв.м. . Площадь первого этажа 80,1 кв.м. . Площадь второго этажа 75,7 кв.м.
Другие фотографии в проекте
Вопросы к фото 0
Задайте вопрос
Вам ответят эксперты. Пришлем уведомление, когда вам ответят

