
Проектирование и строительство
5
·
10 отзывов
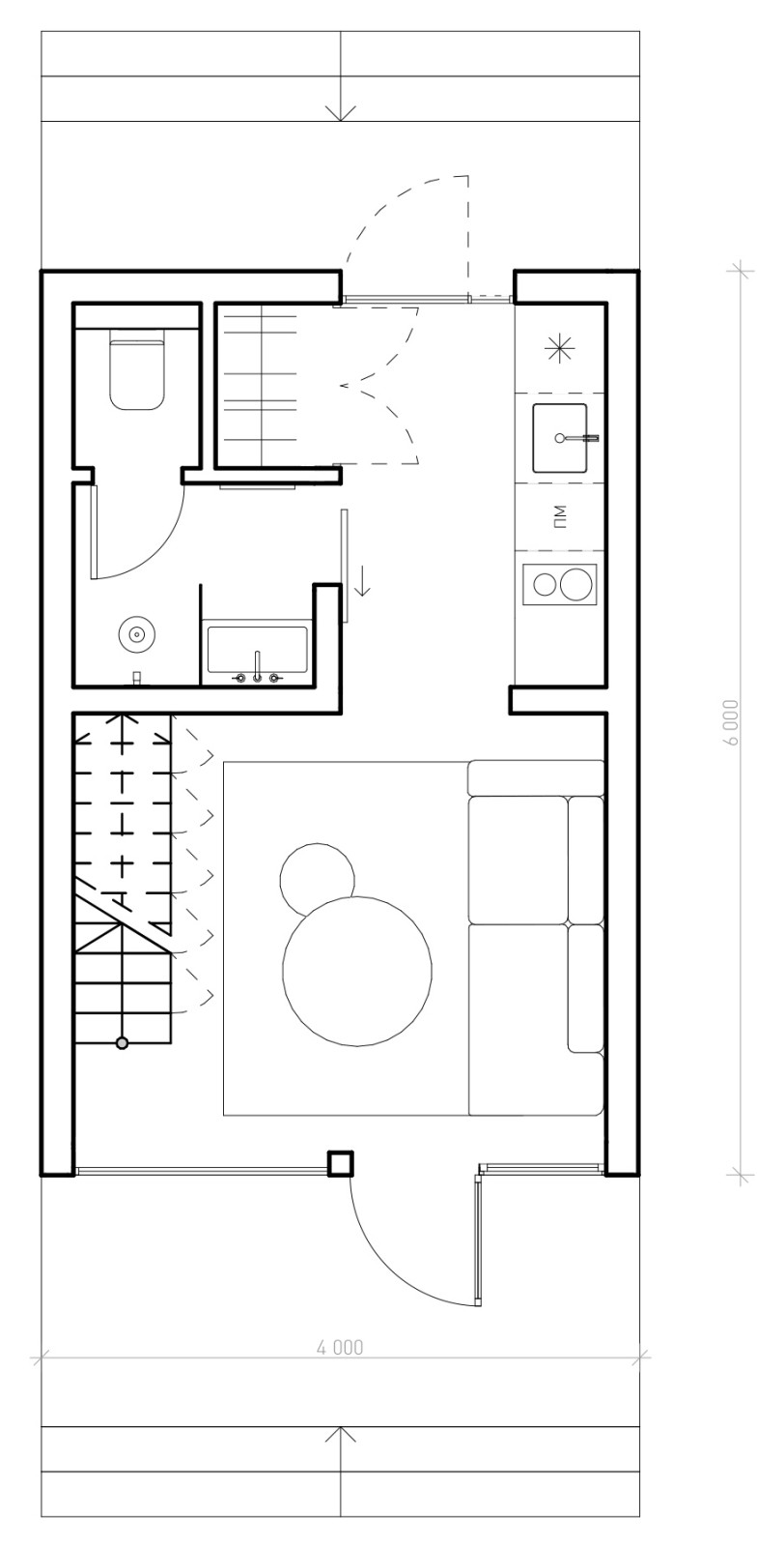
Гостевой каркасный дом S28
Наша компания - молодой развивающийся коллектив, который искренне горит своим делом. . . Мы работаем на базе архитектурного бюро и очень заморачиваемся с проектом: во всех наших домах мы детально прорабатываем не только внешний вид экстерьера, но и подготавливаем полный технический дизайн-проект с расстановкой мебели, электрикой, сантехникой и т.д. . . А еще мы обязательно рассчитываем все конструкции на прочность и делаем правильные "пироги" стен, пола и крыши в соответствии со СНИПами.
Другие фотографии в проекте
Вопросы к фото 0
Задайте вопрос
Вам ответят эксперты. Пришлем уведомление, когда вам ответят




