
Дизайнеры интерьера
5
·
10 отзывов
Гостевой дом Петерштадт
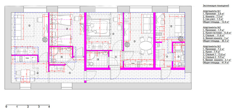
Реконструкция 4-комн. коммунальной квартиры в историческом центре Петербурга в 3 отдельных помещения апартаментов для посуточной аренды при очень ограниченном бюджете на реализацию.
Другие фотографии в проекте
Вопросы к фото 0
Задайте вопрос
Вам ответят эксперты. Пришлем уведомление, когда вам ответят




