logo
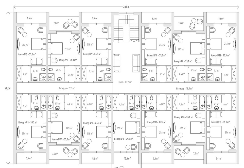
План 2 этажа

Другие фотографии в проекте Гостевой дом 002

Гостевой дом 002. Фасад 04
Гостевой дом 002. Фасад 03
Гостевой дом 002. Фасад 02
Гостевой дом 002. Фасад 01
Гостевой дом 002. Вид сверху
Гостевой дом 002. Общий вид 04

Вопросы к фото 0

Задайте вопрос

Вам ответят эксперты. Пришлем уведомление, когда вам ответят

Сергей Завгородний
Смотреть профиль

0

отзывов

0

Рейтинг

Гостевой дом 002

Дизайн-проект гостиницы на 32 номера . . 1. Площадь пятна застройки - 658,8 м2 . 2. Общая площать здания - 1664 м2 . 3. Количество номеров - 32 шт . 4. Количество этажей - 3 шт . 5. Площадь 1 этажа - 578,3 м2 . 6. Площадь 2 этажа - 542,9 м2 . 7. Площадь 3 этажа - 542,9 м2 . 8. Площадь жилых помещений - 692,7 м2 . 9. Площадь нежилых помещений - 971,3 м2 . 10. Площадь террас / балконов - 270,2 м2

Вопросы к фото 0