
Другие фотографии в проекте Гостевой дом 002
Вам ответят эксперты. Пришлем уведомление, когда вам ответят
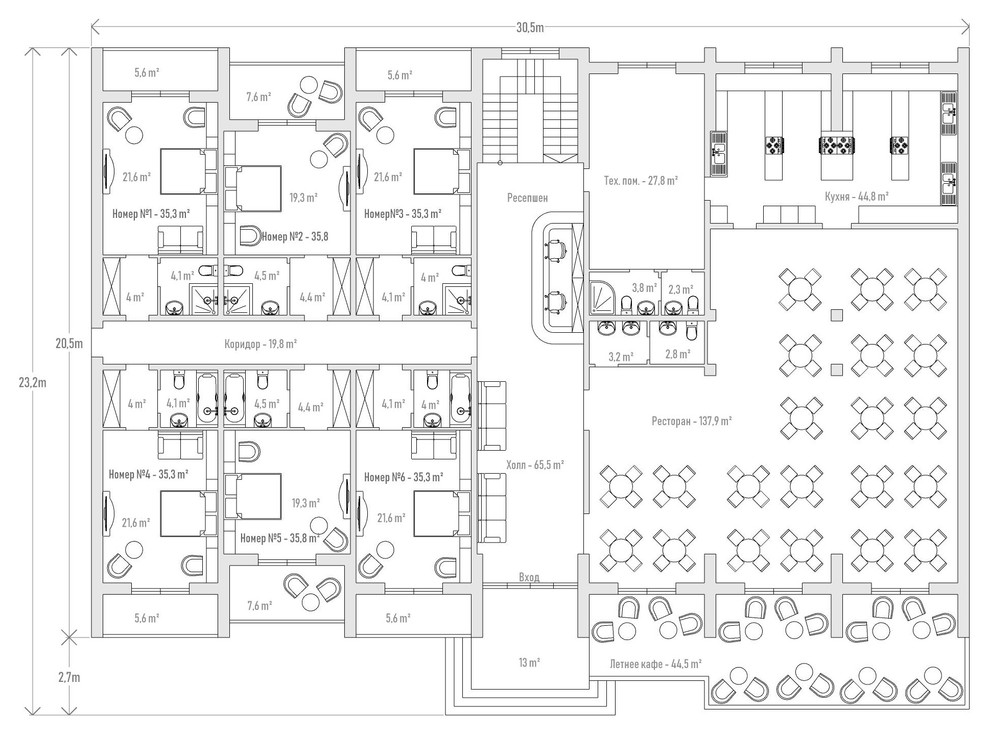
Дизайн-проект гостиницы на 32 номера . . 1. Площадь пятна застройки - 658,8 м2 . 2. Общая площать здания - 1664 м2 . 3. Количество номеров - 32 шт . 4. Количество этажей - 3 шт . 5. Площадь 1 этажа - 578,3 м2 . 6. Площадь 2 этажа - 542,9 м2 . 7. Площадь 3 этажа - 542,9 м2 . 8. Площадь жилых помещений - 692,7 м2 . 9. Площадь нежилых помещений - 971,3 м2 . 10. Площадь террас / балконов - 270,2 м2