
Другие фотографии в проекте Гостевой дом 001
Вам ответят эксперты. Пришлем уведомление, когда вам ответят
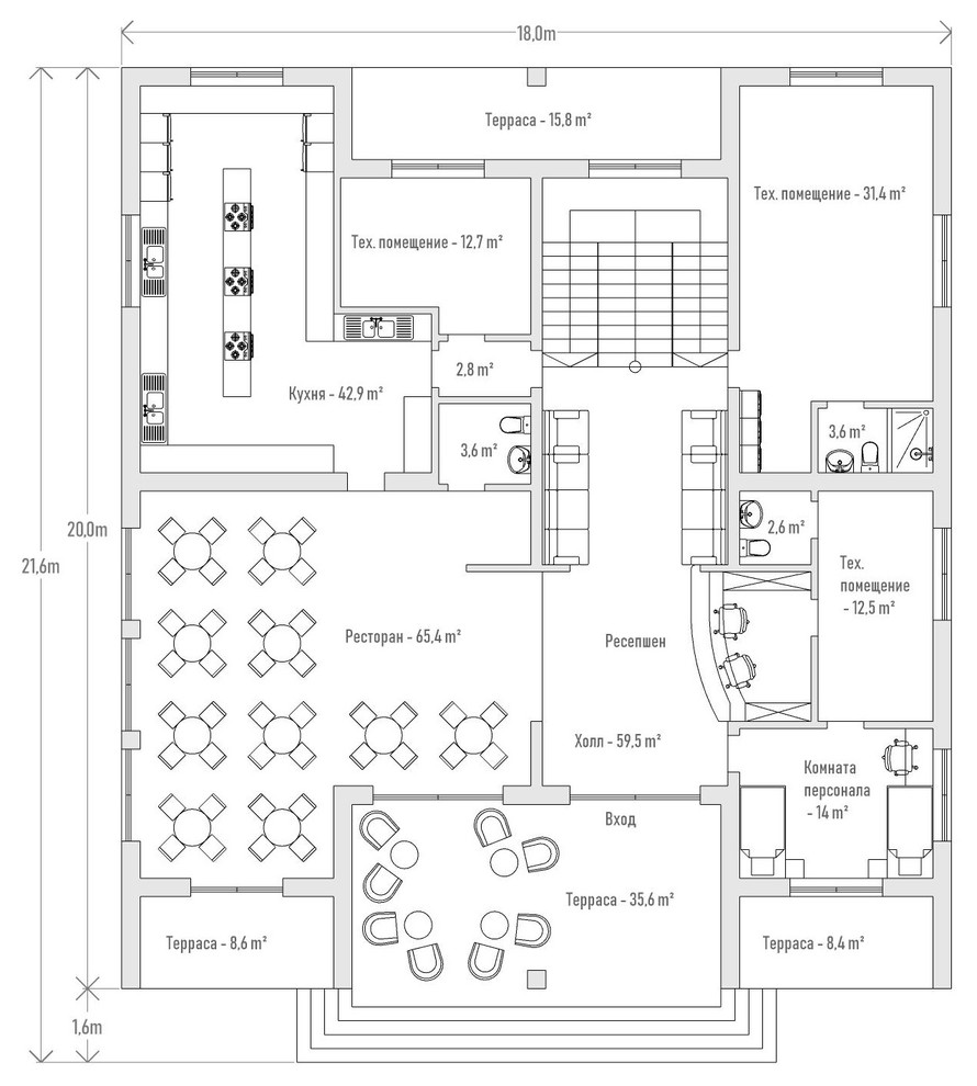
На этаже расположены: . 1. Ресторан - 65,4 м2 . 2. Кухня - 42,9 м2 . 3. Холл - 59,5 м2 . 4. Террасы - 32,8 м2 . 5. Комнаты персонала и тех. помещения - 91,6 м2 . 6. Общая площадь здания - 936 м2 . 7. Площадь 1 этажа - 319,5 м2 .