
Дизайнеры интерьера
4.93
·
10 отзывов
Геометрия и цвет
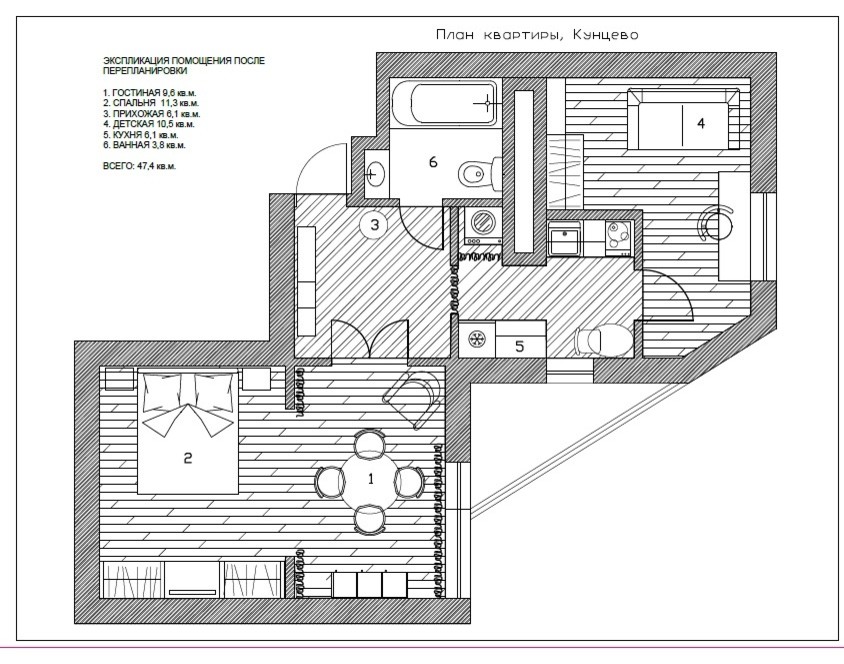
Небольшая квартира 47,7 кв.м. для семьи их трех человек. Требовалось разместить гостиную, спальню, комнату для дочери-студентки, кухню. Эти задачи удалось решить путем грамотного зонирования и перепланировки. . В отделке квартиры мы применили яркие цвета, принты и винтажную мебель. . Яркая геометрия полностью отражает характер хозяев квартиры.
Другие фотографии в проекте
Вопросы к фото 0
Задайте вопрос
Вам ответят эксперты. Пришлем уведомление, когда вам ответят




