logo
Unnamed Photo

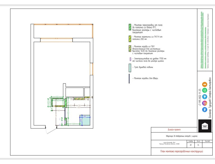
Другие фотографии в проекте г.Мытищи 30квм

Unnamed Photo
Unnamed Photo
Unnamed Photo
Unnamed Photo
Unnamed Photo

Вопросы к фото 0

Задайте вопрос

Вам ответят эксперты. Пришлем уведомление, когда вам ответят