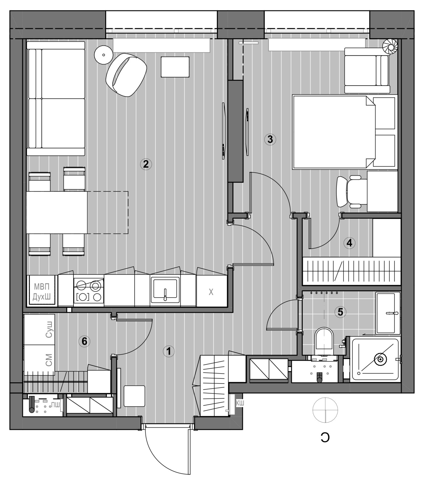
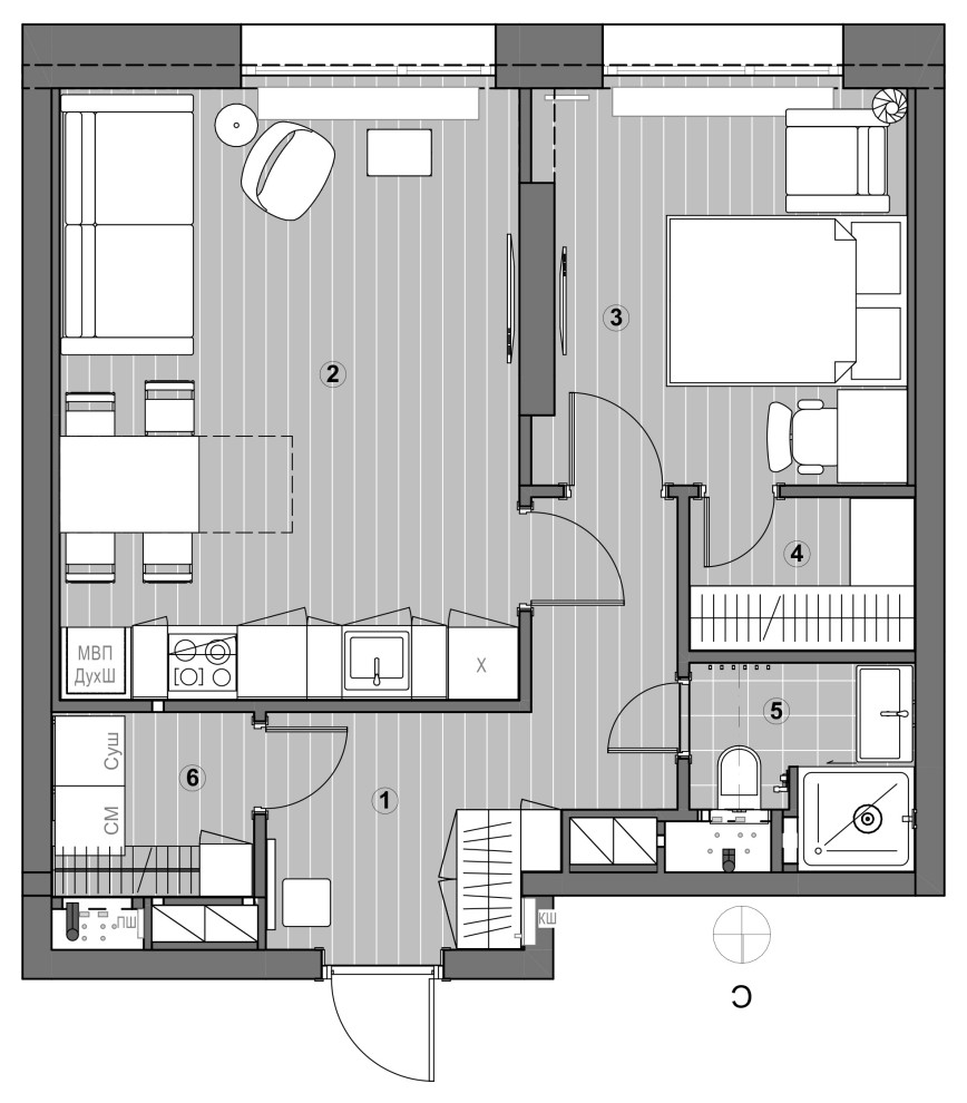
Другие фотографии в проекте г. Москва, ЖК Хорошевский, 49 м2
Сначала новые
Вам ответят эксперты. Пришлем уведомление, когда вам ответят
Светлана Краснова
Дизайнеры интерьера
14
отзывов
5
Рейтинг
Контемпорари
Москва