
Архитекторы
5
·
10 отзывов
Erica Garden дизайн-проект загородного дома
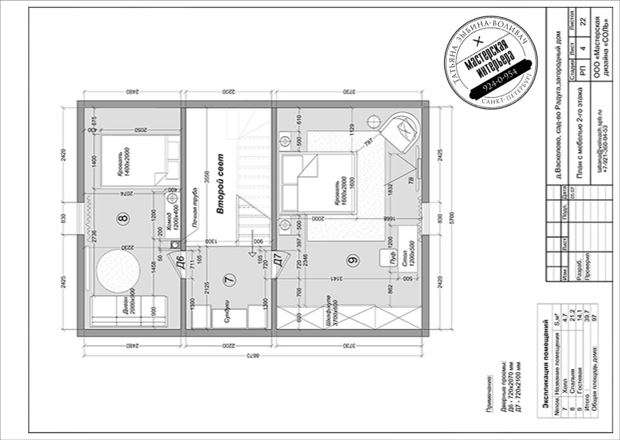
Содержание проекта и обмерные планы
Другие фотографии в проекте
Вопросы к фото 0
Задайте вопрос
Вам ответят эксперты. Пришлем уведомление, когда вам ответят

Архитекторы
5
·
10 отзывов
Содержание проекта и обмерные планы
Другие фотографии в проекте
Вам ответят эксперты. Пришлем уведомление, когда вам ответят