
Вам ответят эксперты. Пришлем уведомление, когда вам ответят
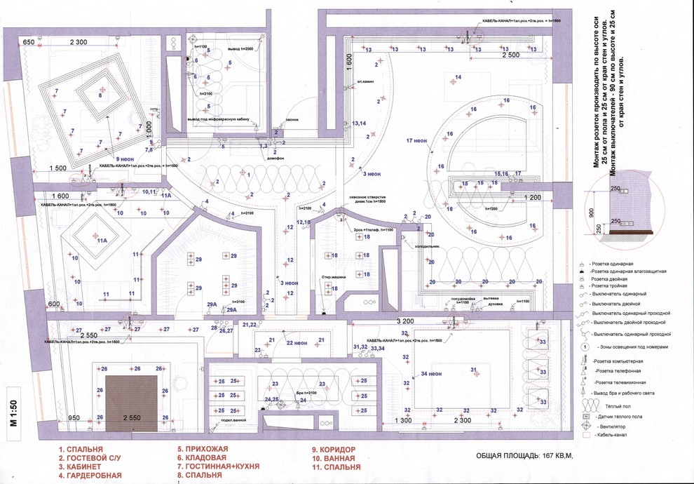
40 зон света, из них 5 диммируемых люстр, 6 диммируемых LED лент, 1 RGB LED лента. 6 управляемых термоголовок на радиаторах отопления, 5 зон теплого пола (ванна, душ, прихожая, кухня и зона барной стойки. Автоматическая ночная подсветка. Систем аква стоп с сигнализацией и СМС информированием. Систем учета воды и электропотребления. 2 аудио и 3 видеозоны мультирум. IP домофония и удаленное видеонаблюдение. Система управления посредством Apple Iphjne и iPad.