Экстерьер дома в Николиной поляне
Ирина Рожкова

Ирина Рожкова

Дизайнеры интерьера

5

·

10 отзывов

Экстерьер дома в Николиной поляне

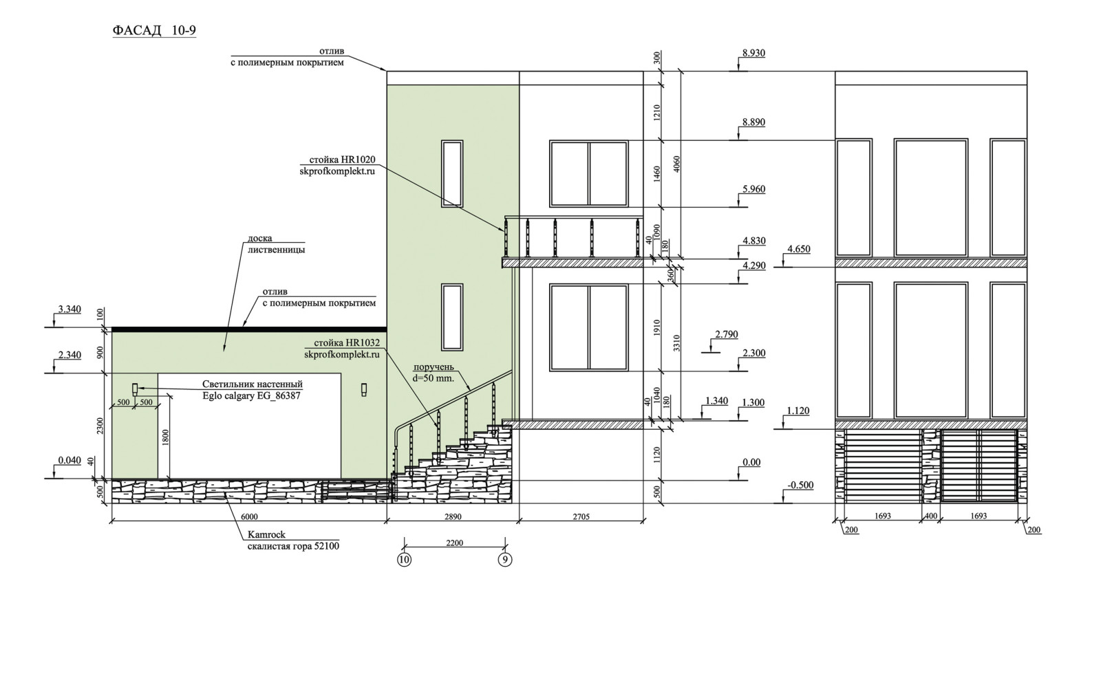
Проект «Дома в Николиной поляне» - пример сугубо индивидуального загородного жилья, отвечающего современным стандартам качества. Эффекта стильного, лаконичного дизайна фасадов нам удалось добиться благодаря использованию в отделке натуральных материалов – светлой известковой штукатурки и древесины, прошедшей специальную обработку и получившей водоотталкивающие свойства. Нестандартные пропорции окон подчеркивают эксклюзивный характер постройки. . В стилистике «Дома в Николиной поляне» также читается функционализм школы Баухауз. Сложная композиция архитектурного объема гармонично вписана в просторный участок, примыкающий к лесу. . Мы постоянно ведем поиск образа индивидуальной бани, обязательно обладающей собственным характером и в то же время несущей в себе извечные архитектурные черты. .

Другие фотографии в проекте

Вопросы к фото 0

Задайте вопрос

Вам ответят эксперты. Пришлем уведомление, когда вам ответят

Похожие фотографии

Проект средиземноморского дома в Крыму

Проект средиземноморского дома в Крыму

Проект средиземноморского дома в Крыму

Павел Кошарный

Дом Oἶκος в Раздолье

Дом Oἶκος в Раздолье

Дом Oἶκος в Раздолье

Андрей Карапетян

Эскизный проект: Современный загородный дом в лесу + Интерьер

Эскизный проект: Современный загородный дом в лесу + Интерьер

Эскизный проект: Современный загородный дом в лесу + Интерьер

Михаил Конев

Усадьба в Златоусте

Усадьба в Златоусте

Усадьба в Златоусте

Ольга Вавилова

Уютный дом в средиземноморском стиле на Черном море

Уютный дом в средиземноморском стиле на Черном море

Задача стояла спроектировать дом на очень крутом склоне, перепад составил более 12 метров. Нам надо было не только удобно разместить дом и решить планировочные задачи, но и организовать места отдыха, беседку и бассейн. Мы организовали рельеф террасами и постарались избежать высоких подпорных стен. Получилось уютно и атмосферно и, что немаловажно, функционально.

Уютный дом в средиземноморском стиле на Черном море

Александра Штукатурова

Архитектурный проект фасада кафе

Архитектурный проект фасада кафе

Архитектурный проект фасада кафе

Андрей Панфутов

House boat

House boat

House boat

Наталия Ставратий

Загородный дом

Загородный дом

Загородный дом

Светлана Захарова

Проект 372 А «Дега»

Проект 372 А «Дега»

СМОТРЕТЬ ВСЮ КОЛЛЕКЦИЮ: . http://www.alfaplan.ru/catalog/group_644/group_668/

Проект 372 А «Дега»

Владимир Тарасов

Проект фасада для нотариуса

Проект фасада для нотариуса

Стиль- классика.

Проект фасада для нотариуса

Ирина Азаева

Проект фасада для нотариуса

Проект фасада для нотариуса

Стиль- классика.

Проект фасада для нотариуса

Ирина Азаева

Бани и баньки из бруса, бревна и лафета

Бани и баньки из бруса, бревна и лафета

Маленькие и большие бани и сауны, из рубленного и оцилиндрованного бревна, лафета, бруса. . . ✔️ для производителей срубов . ✔️ рубщиков . ✔️ строительных компаний . ✔️ бригад мастеров . ✔️ частных лиц . ✔️ банных комплексов . ✔️ загородных баз и мест отдыха . . Состав проектов: . Архитектурные решения, Конструкции деревянные / разбрусовка / разбревновка, схемы фундаментов, стропильные конструкции, балки пола. . Спецификации и карты раскроя сруба и конструкций. . . ?️ площадь: от 23 м2 до 750 м2 . . С моим подробным проектом Вы сможете: . ? произвести точный расчет стоимости сруба, монтажа и строительства в любой строительной компании или артели; . ?️ изготовить сруб и фундамент, произвести сборку сруба и конструкций; . ? сэкономить до 25% стоимости бани за счет точных данных по раскрою сруба и выбора наилучшего предложения; . . ⏳ быстро и качественно, с соблюдением норм, принципами комфортности и эргономики!

Бани и баньки из бруса, бревна и лафета

Денис Медведев