Эклектика в сером

Другие фотографии в проекте Эклектика в сером

Вопросы к фото 0

Задайте вопрос

Вам ответят эксперты. Пришлем уведомление, когда вам ответят

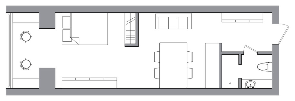
Азиатский, Красноярск, Небольшая студия для двоих

Svetlana Dmitrieva

Svetlana Dmitrieva

Дизайнеры интерьера

Смотреть профиль

0

отзывов

0

Рейтинг

Эклектика в сером

Владимир Мальцев фотограф

Вопросы к фото 0