
Дизайнеры интерьера
5
·
12 отзывов
Эклектика на Мичуринском
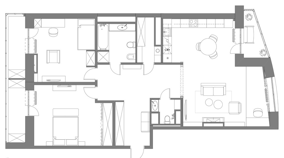
Прихожая сразу знакомит гостей квартиры со стилем, который будет прослеживаться далее. Плитка пэчворк смело покрывает основную площадь прихожей. Активный зеленый цвет с классическими молдингами сочетается с кирпичной колонной, которые не могли бы встретиться в реальном мире, но здесь они уживаются. В целом, вся прихожая выделена темным зеленым цветом, что сразу выделяет её от основного белого объёма примыкающего холла. Зеркальная стена гардеробного шкафа визуально делает прихожую ещё просторнее.
Другие фотографии в проекте
Вопросы к фото 0
Задайте вопрос
Вам ответят эксперты. Пришлем уведомление, когда вам ответят
$$$, Бежевый, Белый, Большой, Входная дверь, Зелёный, Контемпорари, Москва, Однопольная дверь, Прихожая, Средняя паркетная доска, зеркальная стена, зеркальные фасады, кирпич, красный кирпич, лофтовые светильники, скамейка, скамья, трехкомнатная квартира, трешка, французская ёлочка, фьюжн, эклектика
Похожие фотографии

Интерьер премиум класса.
Стильный дизайн: большая входная дверь в современном стиле с бежевыми стенами, паркетным полом среднего тона, одностворчатой входной дверью и бежевым полом - последний тренд
Александр и Ирина Кутенковы

Квартира в современном стиле
Источник вдохновения для домашнего уюта: большая входная дверь в современном стиле с белыми стенами, полом из керамогранита, одностворчатой входной дверью, белой входной дверью и бежевым полом
Кирилл Кондриков

Реализованный интерьер дома "Семейное гнездо"
На фото: большой вестибюль в современном стиле с зелеными стенами, полом из керамогранита, одностворчатой входной дверью, белой входной дверью и бежевым полом с
Ольга Дубровская

Реализованный интерьер дома "Семейное гнездо"
На фото: большой вестибюль в современном стиле с зелеными стенами, полом из керамогранита, одностворчатой входной дверью, белой входной дверью и бежевым полом
Ольга Дубровская

Прихожая с большим шкафом
Стильный дизайн: большая входная дверь с белыми стенами, паркетным полом среднего тона, одностворчатой входной дверью, белой входной дверью и коричневым полом - последний тренд
Диана Миронова

Cталинка на Свеаборгской ул., 27
Свежая идея для дизайна: большая узкая прихожая в классическом стиле с зелеными стенами, паркетным полом среднего тона, одностворчатой входной дверью, бежевым полом, кессонным потолком и любой отделкой стен - отличное фото интерьера
Ремонт и дизайн квартир в СПб I Рестройм

Белый минимализм - белая картина
На фото: большая входная дверь в современном стиле с белыми стенами, полом из винила, одностворчатой входной дверью, белой входной дверью и белым полом с
Александр Мерник

Белый минимализм - грязная зона
На фото: большая входная дверь в современном стиле с белыми стенами, полом из винила, одностворчатой входной дверью, белой входной дверью и белым полом
Александр Мерник

Первый Московский: двухкомнатная квартира 74 кв.м.
На фото: входная дверь среднего размера в современном стиле с бежевыми стенами, полом из керамогранита, одностворчатой входной дверью, белой входной дверью, бежевым полом и многоуровневым потолком с
Дмитрий Красса

Первый Московский: двухкомнатная квартира 74 кв.м.
Пример оригинального дизайна: входная дверь среднего размера в современном стиле с бежевыми стенами, полом из керамогранита, одностворчатой входной дверью, белой входной дверью, бежевым полом и многоуровневым потолком
Дмитрий Красса

Дизайн проект дома в г.Рига
Стильный дизайн: большая входная дверь: освещение в современном стиле с бежевыми стенами, полом из керамической плитки, одностворчатой входной дверью, стеклянной входной дверью, бежевым полом и панелями на стенах - последний тренд
Кристина Новожилова

Дизайн проект дома в г.Рига
Идея дизайна: большая входная дверь: освещение в современном стиле с бежевыми стенами, полом из керамической плитки, одностворчатой входной дверью, стеклянной входной дверью, бежевым полом и панелями на стенах
Кристина Новожилова




