
Другие фотографии в проекте Двухуровневая квартира в Нижнем Новгороде
Вам ответят эксперты. Пришлем уведомление, когда вам ответят
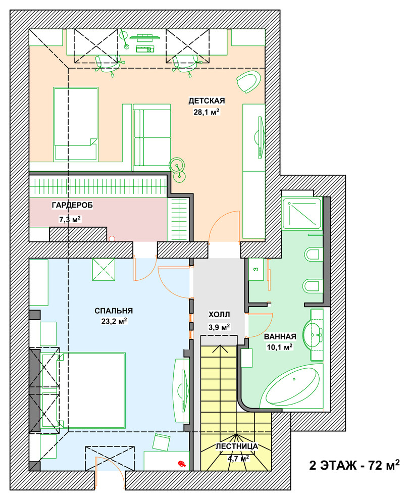
Дизайн интерьера Нижний Новгород, Дизайн интерьера от Людмилы Понизовкиной, Контемпорари, Нижний Новгород, Туалет, двухуровневая квартира, дизайн квартиры, интерьер квартиры

Квартира с историей
Татьяна Ильина (Сорокина)

CLASSIC VIBE
Игорь Комаров

ЖК Черняховского
Анна Моджаро

Квартира в балийском стиле на Петроградке
Екатерина Савенко

ЖК Vincent реализация
Тимур Минюшов

Современный интерьер для молодой семьи в квартире 36 м²
Domeo 🏆 Лучшая компанию по ремонту МСК

ЖК Рыбная деревня
Mira Space

Квартира на Тимирязева
Наталия Дегтярева

Квартира в балийском стиле на Петроградке
Екатерина Савенко

Дизайн интерьера четырехкомнатной квартиры в г. Москва
На фото: маленький туалет в скандинавском стиле с фасадами с выступающей филенкой, бежевыми фасадами, инсталляцией, керамогранитной плиткой, разноцветными стенами, полом из керамогранита, подвесной раковиной, серым полом, подвесной тумбой и обоями на стенах для на участке и в саду
OM design

2-х ком.кв-ра в ЖК Титул на Серебрянической набережной
Идея дизайна: туалет в классическом стиле
Zoya Malashkina