
Дизайнеры интерьера
5
·
3 отзыва
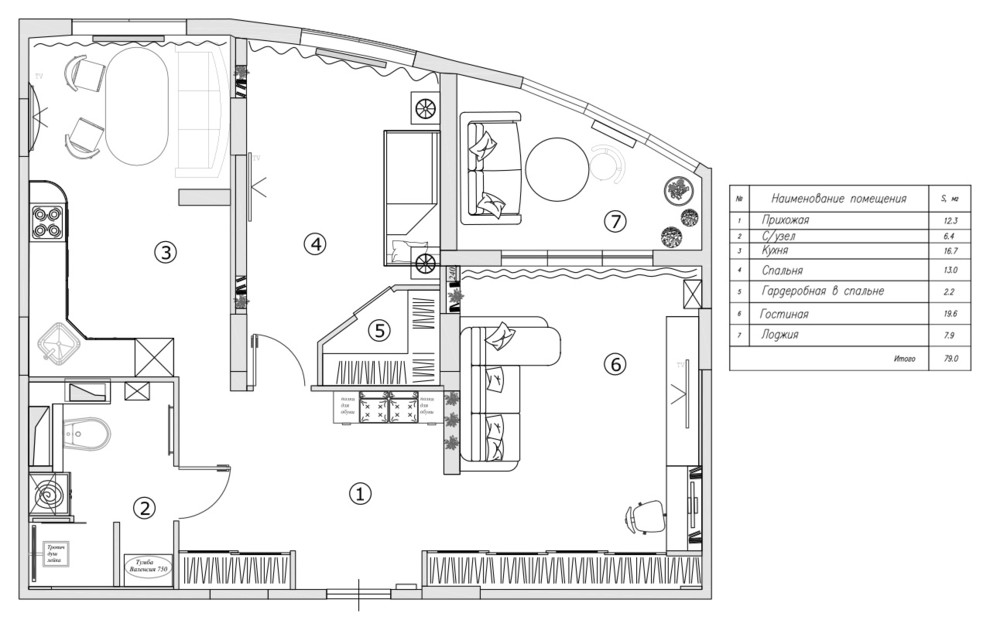
Двухкомнатная квартира в Подмосковье, г. Дзержинский
Дизайнер проекта Мария Лазич
Другие фотографии в проекте
Вопросы к фото 0
Задайте вопрос
Вам ответят эксперты. Пришлем уведомление, когда вам ответят

Дизайнеры интерьера
5
·
3 отзыва
Дизайнер проекта Мария Лазич
Другие фотографии в проекте
Вам ответят эксперты. Пришлем уведомление, когда вам ответят