
Дизайнеры интерьера
5
·
2 отзыва
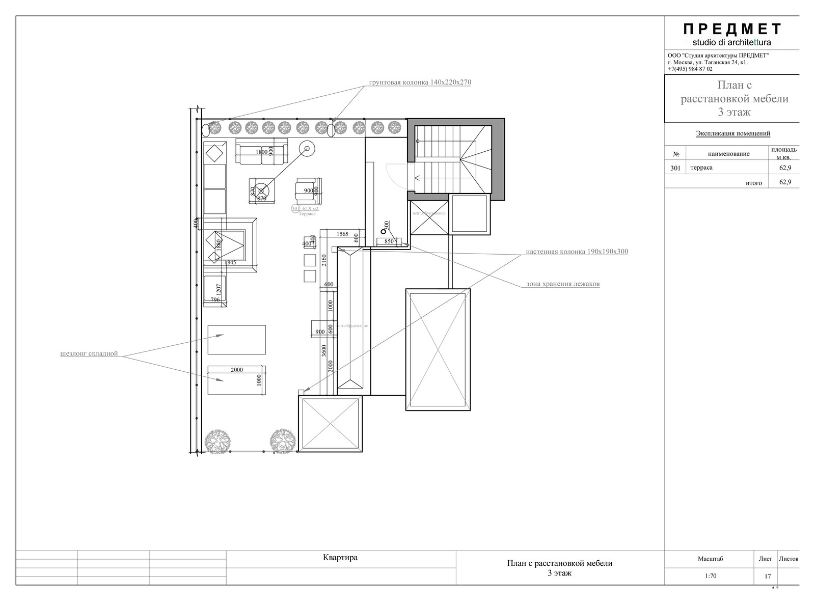
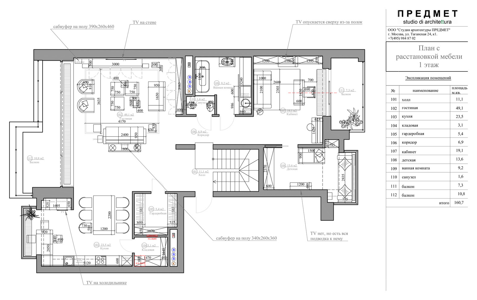
Двухэтажная квартира в стиле эклектика с террасой
Площадь: 320 м² . Реализация: 2017 . Авторы: Олеся Ситникова, Татьяна Минина
Другие фотографии в проекте
Вопросы к фото 0
Задайте вопрос
Вам ответят эксперты. Пришлем уведомление, когда вам ответят
Арх.Предмет, Гостиная, Москва, Олеся Ситникова, интерьер, квартира, квартира в Москве, спальня, эклектика
Похожие фотографии

Квартира, вдохновленная Кандинским. ЖК "Яуза парк"
Анастасия Дубовских

Общий вид на гостиную и обеденную зону
Наталья Корнюхина

Фотосъёмка квартиры. Дизайнер Екатерина Плотникова
Александр Вавилов

162_Сердце_Столицы
FLIK Дизайн бюро

Апартаменты в ЖК Флотилия
Юлия Савельева

Квартира 99 м2 ЖК Родной город. Воронцовский парк в современном стиле
Ксения Блохина

Долгая дорога к соснам
Yuliya Pesheva

apartment
Екатерина Гурари

Квартира для молодой семьи
Андрей Быков

Квартира для молодой семьи
Андрей Быков






