
Архитекторы
0
Дом с вторым светом
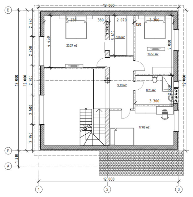
Проект дома общей площадью 200 квм выполнен для семьи из 4х человек. . На первом этаже расположена прихожая, смежная с гардеробной. Есть отдельный вход с улицы в кладовую для хранения инвентаря. Из просторного холла открываются помещения раздельных санузлов. котельной и спальни, а также вход в кухню-гостиную с выходом на террасу и вторым светом над зоной гостиной. . На втором этаже две детских спальни, санузел, спальня хозяев с отдельной гардеробной.
Другие фотографии в проекте
Вопросы к фото 0
Задайте вопрос
Вам ответят эксперты. Пришлем уведомление, когда вам ответят




