
Архитекторы
5
·
10 отзывов
Дом после реконструкции на Носовихинском шоссе
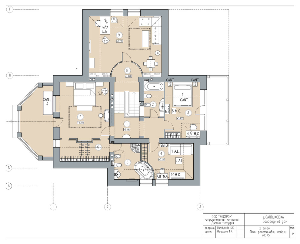
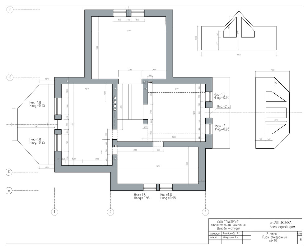
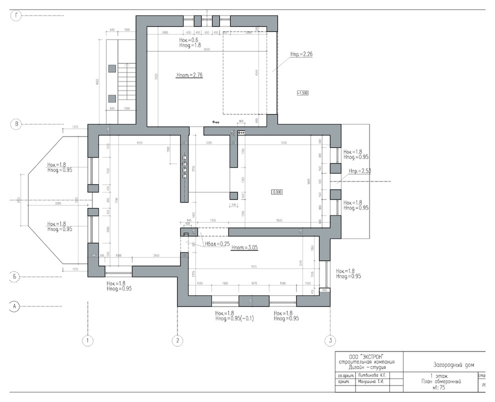
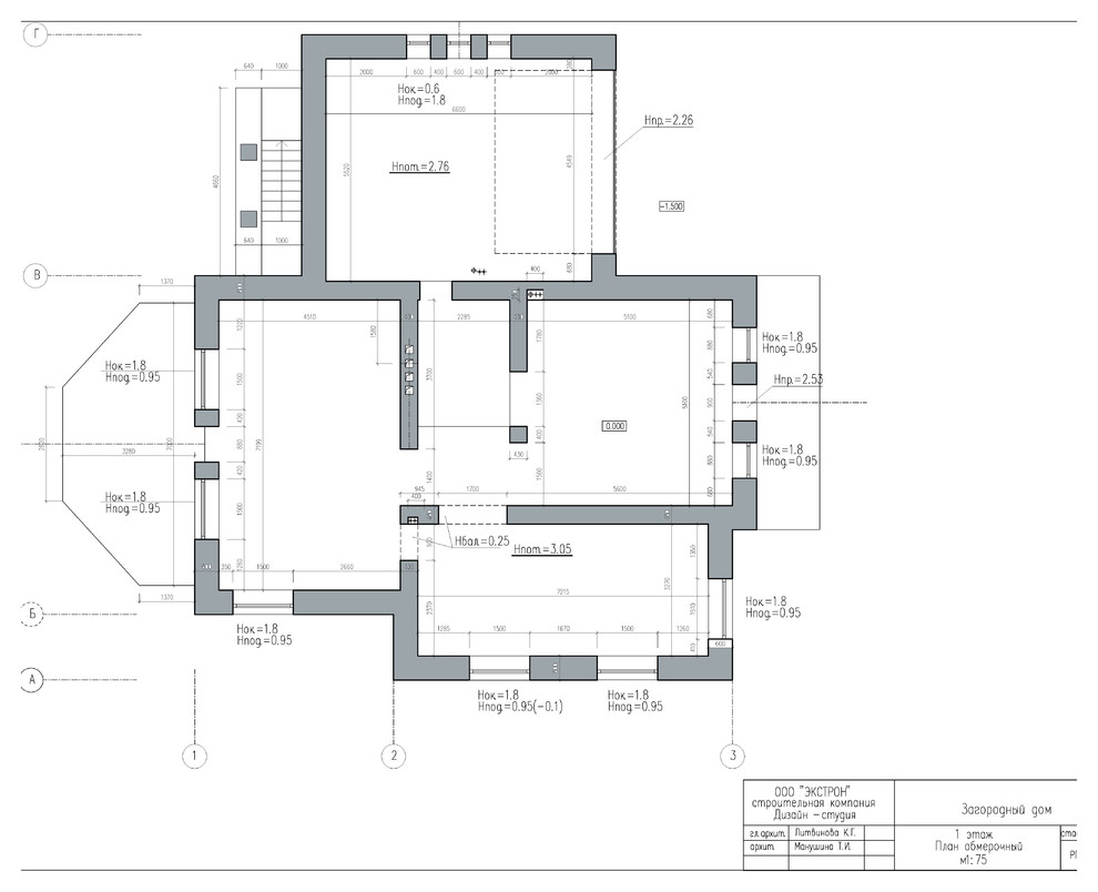
Этот дом, купленный заказчиком в виде говой кирпичной коробки, был подвергнут реконструкции более чем наполовину своего объема. На первом этаже вместо гаража сделали гостевые спальни, пристроили остекленный тамбур - парадный вход, с балконом на 2 этаже, веранду на выходе в сад превратили в помещение столовой, а над ней на 2 этаже вытянули кровлю и сделали зимний сад. Стилистически архитектурный объем здания решили в виде дворянской усадьбы в классическом стиле,оштукатурили стены, добавили лепнину и кованые ограждения. Под стиль основного дома мной был спроектирован отдельно стоящий гараж - хозблок,с помещением для садовника и охраны на 2 этаже. . Внутренний интерьер дома выполнен в классическом ,французском стиле, с добавлением витражей, кованой лестницы, пол в холле 1 этажа выложен плитами из травертина со вставкой из мраморной мозаики. Голубая гостиная получилась легкая и воздушная благодаря светлым оттенкам стен и мебели. Люстры итальянской фабрики Mechini, ручной работы, делают интерьер гостиной узнаваемым, индивидуальным. . Радиусные двери, образующие лестничный холл перед кабинетом на промежуточном этаже и встроенная мебель в самом кабинете выполнены по эскизам архитектора мастерами-краснодеревщиками. Витражи, которые украшают двери, а также витражи в холле 1 этажа и на лестнице - выполнены в технике "Тиффани" художниками по стеклу. . Интерьер хозяйской спальни является изящным фоном для мебели ручной работы - комплект кровать, тумбочки, комод, туалетный столик - серо-голубые тканевые обои и тепло-бежевый фон стен создают мягкую, приятную атмосферу, а полог из кружевной ткани над кроватью добавляет уюта.
Другие фотографии в проекте
Вопросы к фото 0
Задайте вопрос
Вам ответят эксперты. Пришлем уведомление, когда вам ответят
$$$, Гостиная, Мебель для мультимедиа и тумбы под телевизор, Москва, Переходный, журнальный стол, камин, ковер, колонны, коричневое кресло, коричневый диван
Похожие фотографии

MN_beauty
Максим Новиньков

MN_beauty
Максим Новиньков

ЖК_Prime_Time
На фото: гостиная комната в стиле неоклассика (современная классика) с с книжными шкафами и полками, синими стенами, стандартным камином, скрытым телевизором, зоной отдыха и акцентной стеной с
FLIK Дизайн бюро

Квартира на Петровке
Идея дизайна: маленькая объединенная гостиная комната в белых тонах с отделкой деревом в стиле неоклассика (современная классика) с паркетным полом среднего тона, горизонтальным камином, фасадом камина из металла и панелями на части стены для на участке и в саду
Павел Исаев

Квартира на Петровке
На фото: маленькая гостиная комната в стиле неоклассика (современная классика) с белыми стенами, паркетным полом среднего тона, горизонтальным камином, фасадом камина из металла, телевизором на стене, многоуровневым потолком и панелями на части стены для на участке и в саду с
Павел Исаев

Квартира на Петровке
Источник вдохновения для домашнего уюта: маленькая объединенная гостиная комната в стиле неоклассика (современная классика) с белыми стенами, паркетным полом среднего тона, горизонтальным камином, фасадом камина из металла, телевизором на стене, многоуровневым потолком и панелями на части стены для на участке и в саду
Павел Исаев

ЖК ДОМИНИОН
На фото: большая идея дизайна в стиле неоклассика (современная классика) с
Daria Shatilova

ЖК Полянка/44
Стильный дизайн: большая гостиная комната в стиле неоклассика (современная классика) с белыми стенами, светлым паркетным полом, телевизором на стене и обоями на стенах - последний тренд
Юля Чернова

ЖК Полянка/44
Источник вдохновения для домашнего уюта: большая гостиная комната в стиле неоклассика (современная классика) с белыми стенами, светлым паркетным полом, телевизором на стене и обоями на стенах
Юля Чернова

Квартира 220 кв.м. в доходном доме на Солянке
Свежая идея для дизайна: большая гостиная комната в стиле неоклассика (современная классика) с музыкальной комнатой, зелеными стенами, паркетным полом среднего тона и зоной отдыха - отличное фото интерьера
Анна Кларк

Кухня ЖК Нео
На фото: идея дизайна в стиле неоклассика (современная классика)
Фабрика Кухни Риальто

ЖК Квартал
На фото: идея дизайна в стиле неоклассика (современная классика)
TOOLSKIY factory




