
Проектирование и строительство
4.94
·
10 отзывов
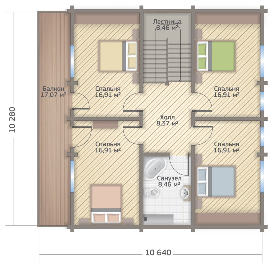
Дом по комбинированной технологии 225 кв.м. (КД-225 GOOD WOOD)
Дом по комбинированной технологии, где первый этаж выполнен из керамического блока POROTHERM, а второй - из клееного бруса корпорации GOOD WOOD, способен примирить ярых поклонников каменных домов и домов из дерева. В каменной части расположены технические помещения и гостевая зона, а на втором этаже расположены спальни, что способствует формированию особой ауры и комфорта, которые присущи дереву.
Другие фотографии в проекте
Вопросы к фото 0
Задайте вопрос
Вам ответят эксперты. Пришлем уведомление, когда вам ответят




