
Проектирование и строительство
5
·
10 отзывов
Дом из профилированного бруса Лукоморье-138
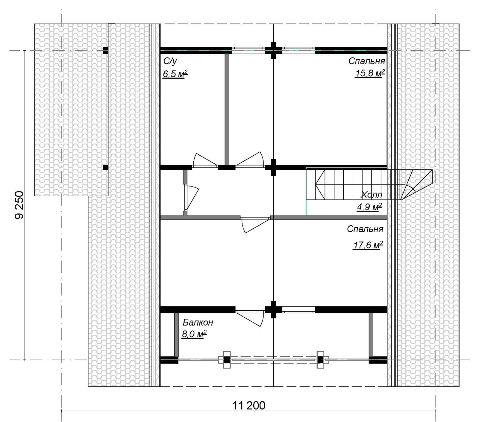
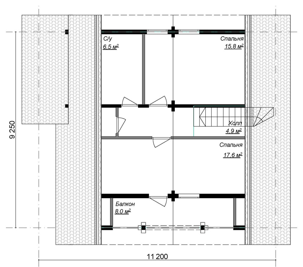
Дачный дом из профилированного бруса Лукоморье-138 предполагает постоянное проживание небольшой семьи. Этот проект наша фирма Могута создала еще в 2014 году. Дачный дом построен в Сокольском районе Нижегородской области. Материал стен – сухой профилированный брус. Отличное решение для дачного дома в плане соотношения цена-качество. Классическое архитектурное решение для дачных домов, расположенных в красивой местности – широкий балкон, расположенный над верандой 1 этажа. В этом дачном доме из профилированного бруса от компании Могута http://могута.рф есть три спальных комнаты, два санузла, просторная гостиная, кухня и котельная с отдельным выходом в сад. Этот проект дачного дома из профилированного бруса также можно увидеть на другом сайте нашей компании в другом цветовом решении: http://www.rusderevo.ru/razdel/proekt139.php . #деревянныедомаМогута - дачные дома из профилированного бруса! . Общая площадь: 138,6 м2 . . Площадь 1 этажа: 85,8 м2 . 1 этаж: . гостиная 24,7 м2 . спальня 15,6 м2 . кухня 11,7 м2 . котельная 4,3 м2 . терраса 7,9 м2 . тамбур 3,2 м2 . прихожая 6,1 м2 . крыльцо 4,9 м2 . с/у 7,4 м2 . . Площадь 2 этажа: 52,8 м2 . 2 этаж: . спальня 15,8 м2 . спальня 17,6 м2 . балкон 8,0 м2 . с/у 6,5 м2 . холл 4,9 м2 . . Цена в клееном брусе толщиной 200 мм – от 4 750 000 руб . Цена в сухом профилированном брусе толщиной 190 мм – от 3 800 000 руб . Цена в оцилиндрованном бревне диаметром 240 мм – от 3 300 000 руб . В стоимость входит: . -эскизный проект . - ленточный фундамент на бетонных сваях . -стены из бруса или бревна . -черновые полы 1 и 2 этажа . - крыша из металлочерепицы "под ключ": стропила, обрешетки, паро-гидроизоляция, утепление, подшив карнизов . Подробнее о планировках и стоимости дома можно узнать на нашем сайте: . http://могута.рф/proekty/doma-ploshchadyu-100-150-kv-m/lukomore . http://www.rusderevo.ru/razdel/proekt139.php . +7 910 790 21 51
Другие фотографии в проекте
Вопросы к фото 0
Задайте вопрос
Вам ответят эксперты. Пришлем уведомление, когда вам ответят
Гостиная, Нижний Новгород
Похожие фотографии

Apartments Neva Towers 1
Пример оригинального дизайна: гостиная комната среднего размера в современном стиле с бежевыми стенами, светлым паркетным полом, бежевым полом, многоуровневым потолком, панелями на части стены и акцентной стеной
Вадим Мартынов Екатерина Гатилова

Частная резиденция DRR
Свежая идея для дизайна: идея дизайна в современном стиле - отличное фото интерьера
Portner Architects

Вавилова 4
Стильный дизайн: гостиная комната в стиле неоклассика (современная классика) - последний тренд
Ира Носова

FESTIVAL FLAT
Пример оригинального дизайна: открытая, объединенная гостиная комната среднего размера, в белых тонах с отделкой деревом в современном стиле с белыми стенами, паркетным полом среднего тона, мультимедийным центром и коричневым полом
Екатерина

Гостиная
Пример оригинального дизайна: гостиная комната в современном стиле с коричневым диваном, паркетным полом среднего тона и потолком из вагонки без камина
Александра Протасова

Квартира ул Тверская
На фото: гостиная комната в стиле неоклассика (современная классика) с белыми стенами и многоуровневым потолком с
Олег Михайлов архитектор-дизайнер

Пентхаус в Краснодаре
На фото: идея дизайна в современном стиле с
Денис Мурый

Квартира в Палевском жилмассиве
Идея дизайна: открытая, объединенная гостиная комната среднего размера в скандинавском стиле с белыми стенами, полом из винила, коричневым полом и кирпичными стенами без телевизора
Дмитрий Дубровский

Зал
Источник вдохновения для домашнего уюта: гостиная комната в современном стиле с бежевыми стенами, светлым паркетным полом и бежевым полом
Дмитрий Галаганов

Квартира в ЖК "Василеостровский квартал"
Пример оригинального дизайна: гостиная комната в современном стиле с паркетным полом среднего тона и коричневым полом
Екатерина Савенко

Дом, умный дом(фотографии спальни)
Источник вдохновения для домашнего уюта: идея дизайна в современном стиле
Архитектурная студия Астар проект

Гостиная
Свежая идея для дизайна: маленькая открытая, объединенная гостиная комната в современном стиле с серыми стенами и серым полом без телевизора для на участке и в саду - отличное фото интерьера
Ольга Васильева




