
Проектирование и строительство
5
·
10 отзывов
Дом из клееного бруса "Сказка"
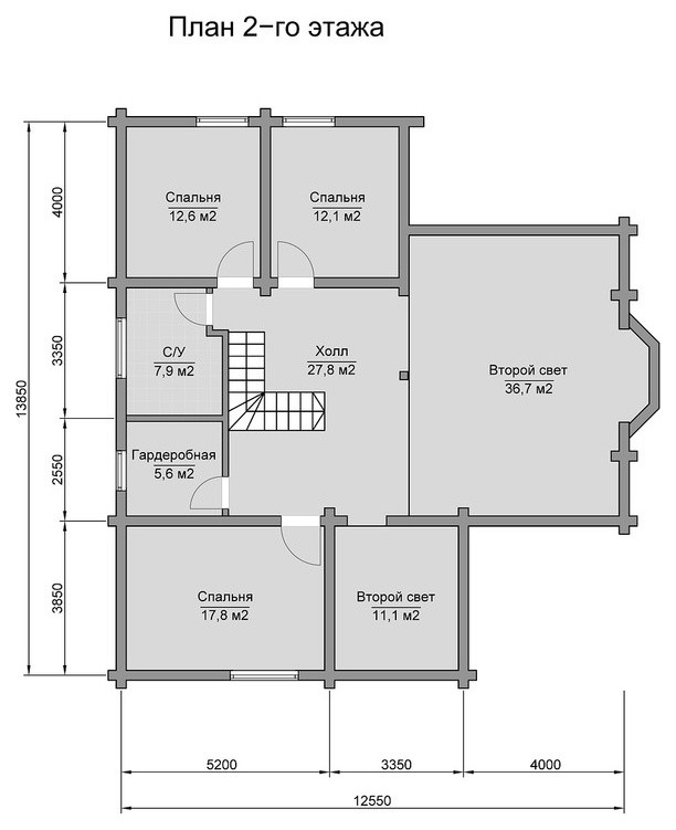
План 2-го этажа дома "Сказка". . Компания "ДДМ-Строй"
Другие фотографии в проекте
Вопросы к фото 0
Задайте вопрос
Вам ответят эксперты. Пришлем уведомление, когда вам ответят


