
Проектирование и строительство
5
·
10 отзывов
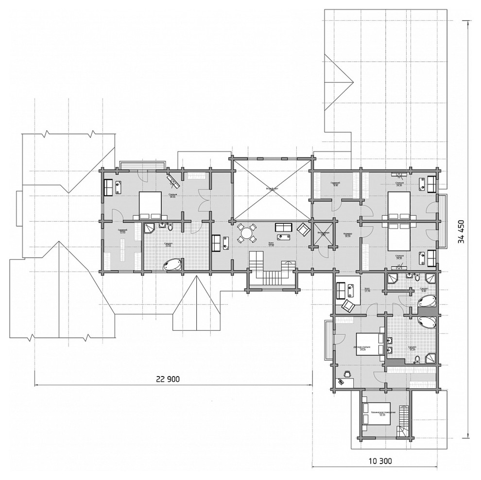
Дом из клееного бруса "Бенилюкс"
Эксклюзивный проект загородного дома из клееного бруса. . Общая площадь 822 метра. . Особенности проекта: второй свет, беседка барбекю, навес для авто, просторная терраса. . . Подробнее о проекте "Бенилюкс" http://www.ddm-stroy.ru/projects/houses/dom-iz-kleenogo-brusa-benilyuks/
Другие фотографии в проекте
Вопросы к фото 0
Задайте вопрос
Вам ответят эксперты. Пришлем уведомление, когда вам ответят
$$$$, Большой, Большой дом, Гостиная, Москва, дом, дорогой дом, клееного бруса, красивый дом, проект дома, проектирование
Похожие фотографии

Чайка
Свежая идея для дизайна: большая идея дизайна в классическом стиле - отличное фото интерьера
Федор Генералов

Крестовский de luxe
Идея дизайна: большая гостиная комната в современном стиле с белыми стенами, паркетным полом среднего тона, горизонтальным камином, зоной отдыха, коричневым полом и обоями на стенах
Нана Кобахидзе

Крестовский de luxe
На фото: большая гостиная комната в современном стиле с белыми стенами, паркетным полом среднего тона, горизонтальным камином, зоной отдыха, коричневым полом и обоями на стенах с
Нана Кобахидзе

Дизайн квартиры в Классическом стиле на ул Бронная 105 кв.м, г.Москва
Стильный дизайн: большая серо-белая гостиная комната:: освещение в классическом стиле с с книжными шкафами и полками, серыми стенами, паркетным полом среднего тона, зоной отдыха, бежевым полом и обоями на стенах - последний тренд
Игорь Ситкилов

Дизайн квартиры в Классическом стиле на ул Бронная 105 кв.м, г.Москва
Идея дизайна: большая серо-белая, парадная, открытая гостиная комната в классическом стиле с серыми стенами, паркетным полом среднего тона, бежевым полом, обоями на стенах и акцентной стеной без камина, телевизора
Игорь Ситкилов

Дизайн квартиры в Классическом стиле на ул Бронная 105 кв.м, г.Москва
Свежая идея для дизайна: большая серо-белая, открытая гостиная комната в классическом стиле с серыми стенами, паркетным полом среднего тона, бежевым полом, с книжными шкафами и полками, обоями на стенах и синим диваном без камина - отличное фото интерьера
Игорь Ситкилов

Дизайн квартиры в Классическом стиле на ул Бронная 105 кв.м, г.Москва
Стильный дизайн: большая серо-белая гостиная комната в классическом стиле с с книжными шкафами и полками, серыми стенами, паркетным полом среднего тона, зоной отдыха, бежевым полом, обоями на стенах и красивыми шторами без камина, телевизора - последний тренд
Игорь Ситкилов

Дизайн квартиры в Классическом стиле на ул Бронная 105 кв.м, г.Москва
Источник вдохновения для домашнего уюта: большая серо-белая гостиная комната в классическом стиле с серыми стенами, паркетным полом среднего тона, бежевым полом, красивыми шторами, с книжными шкафами и полками и обоями на стенах без камина
Игорь Ситкилов

Дом на Николиной Горе
На фото: большая идея дизайна в современном стиле с
Екатерина Любимкина

Paris
Идея дизайна: большая парадная гостиная комната с белыми стенами, паркетным полом среднего тона и фасадом камина из камня
Светлана Светлицкая

ЖК "Садовые Кварталы"
Свежая идея для дизайна: большая гостиная комната в современном стиле с бежевыми стенами, темным паркетным полом и черным полом - отличное фото интерьера
Кирилл Сахаров

ЖК "Садовые Кварталы"
На фото: большая объединенная гостиная комната в современном стиле с бежевыми стенами, темным паркетным полом и черным полом
Кирилл Сахаров




