
Архитекторы
5
·
10 отзывов
Дом из бруса профилированного с навесом под автомобиль
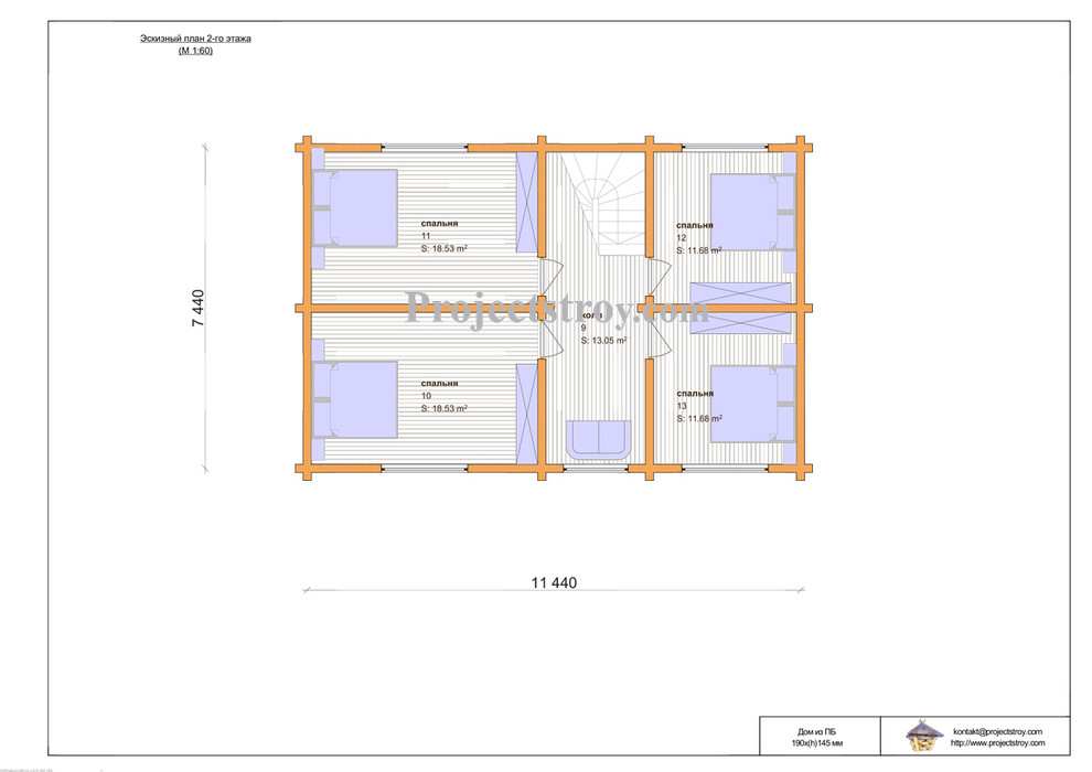
projectstroy . Дом из профилированного бруса с навесом из поликарбоната под автомобиль. . . Проект дачного деревянного дома под круглогодичное проживание 11.4 х 13.2 м. . Поднятие у стен второго этажа 2.2 м - пять спален - совмещенная кухня-гостиная. . . Экспликация дома: . - навес под авто; . - крыльцо; . - тамбур; . - холл с широкой лестницей; . - кухня-гостиная 38 кв. м; . - санузел; . - котельная; . - 5 спален. . . Рекомендации по проекту архитектора: увеличение площади застройки и снижение отхода производства; санузел на втором этаже взамен спальни; возможно изменение материала стен на клееный брус. . . Показатели для предварительного сметного расчета строительства: . . общая площадь - 182 кв. м . общая площадь дома - 150 кв. м . объем ПБ 190х145 мм заг. 6 м ~ 98 куб. м (отход~14%) . балки - 100х200 мм . стропила - 50х200 мм . площадь кровли и периметр - 184 кв. м - 129 м . площадь кровли и периметр дома - 133 кв. м - 87 м . угол кровли - 12-20 гр. . пог. м фундамента дома - 70 м . высота 1-го этажа - 2.85 м . высота подъема стен 2-го этажа - 2.2 м. . . На заметку! . Расстояние между деревянным домом и границами соседнего участка не должна быть менее 3 метров. . Между соседними домами ~12 м (в зависимости от категории огнестойкости и при других условиях). Возможны случаи меньшего расстояния при обоюдном зафиксированном соглашении между соседями. . . Точная смета на строительство силовой части сруба бани зависит от типа фундамента, материала кровли, степени изменения проекта, доставки материала до участка, степени обустройства участка и скрытых пожеланий индивидуальности заказчика). . . http://projectstroy.com/project_e_12.html
Другие фотографии в проекте
Вопросы к фото 0
Задайте вопрос
Вам ответят эксперты. Пришлем уведомление, когда вам ответят
Похожие фотографии

Проект средиземноморского дома в Крыму
Павел Кошарный

Дом Oἶκος в Раздолье
Андрей Карапетян
Эскизный проект: Современный загородный дом в лесу + Интерьер
Михаил Конев
Усадьба в Златоусте
Ольга Вавилова

Уютный дом в средиземноморском стиле на Черном море
Задача стояла спроектировать дом на очень крутом склоне, перепад составил более 12 метров. Нам надо было не только удобно разместить дом и решить планировочные задачи, но и организовать места отдыха, беседку и бассейн. Мы организовали рельеф террасами и постарались избежать высоких подпорных стен. Получилось уютно и атмосферно и, что немаловажно, функционально.
Александра Штукатурова

Архитектурный проект фасада кафе
Андрей Панфутов

House boat
Наталия Ставратий

Загородный дом
Светлана Захарова

Проект 372 А «Дега»
СМОТРЕТЬ ВСЮ КОЛЛЕКЦИЮ: . http://www.alfaplan.ru/catalog/group_644/group_668/
Владимир Тарасов

Проект фасада для нотариуса
Стиль- классика.
Ирина Азаева

Проект фасада для нотариуса
Стиль- классика.
Ирина Азаева

Бани и баньки из бруса, бревна и лафета
Маленькие и большие бани и сауны, из рубленного и оцилиндрованного бревна, лафета, бруса. . . ✔️ для производителей срубов . ✔️ рубщиков . ✔️ строительных компаний . ✔️ бригад мастеров . ✔️ частных лиц . ✔️ банных комплексов . ✔️ загородных баз и мест отдыха . . Состав проектов: . Архитектурные решения, Конструкции деревянные / разбрусовка / разбревновка, схемы фундаментов, стропильные конструкции, балки пола. . Спецификации и карты раскроя сруба и конструкций. . . ?️ площадь: от 23 м2 до 750 м2 . . С моим подробным проектом Вы сможете: . ? произвести точный расчет стоимости сруба, монтажа и строительства в любой строительной компании или артели; . ?️ изготовить сруб и фундамент, произвести сборку сруба и конструкций; . ? сэкономить до 25% стоимости бани за счет точных данных по раскрою сруба и выбора наилучшего предложения; . . ⏳ быстро и качественно, с соблюдением норм, принципами комфортности и эргономики!
Денис Медведев


