
Проектирование и строительство
5
·
1 отзыв
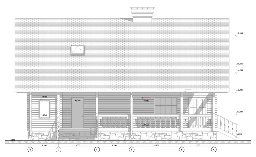
Дом "БРЕНТ"
Уютный деревянный дом (253 м2) построен в живописной местности в одном из Подмосковных коттеджных поселков. При его строительстве, на участке площадью 0,5 ГА, были сохранены старые деревья. Такой подход позволил воссоздать атмосферу традиционной Подмосковной дачи - места для отдыха и тихой, размеренной жизни. В архитектуре дома дачные мотивы также читаются в каждой детали: в тонком, изящном рисунке переплетов больших панорамных окон, светлой отделке стен, просторной веранде. . За счет второго света и больших окон дом получился светлым и просторным. . Три спальни на 2-ом этаже и туалет. . Кабинет, холл и большая гостиная со столовой на 1-ом этаже.
Другие фотографии в проекте
Вопросы к фото 0
Задайте вопрос
Вам ответят эксперты. Пришлем уведомление, когда вам ответят
Веранда, Москва, Фермерский дом, балкон, веранда, двустворчатая дверь, деревянный дом, фонарь
Похожие фотографии

Ресторан Murmansk
Анна Дерр

КП Клуб 2071
Реконструкция загородного дома в Подмосковье
Владислава Гравчикова

Заполье
Представляем вам участок расположенный на окраине поселка Заполье у границы с многовековым лесом. Изначально, он представлял собой пустую площадь с посевным газоном, на которой стоял дом и гараж в финском стиле. Нашей команде удалось воплотить идею и концепцию участка, как «тайный сад». Его главная загадка — уединенность и скрытость от посторонних глаз. Этому способствует расположение в низине, благодаря чему он остается частично скрыт для соседей, а его ландшафт лишь угадывается с возвышенностей. При начале проектирования ключевым решением стало создание приватной зоны очага на деревянном настиле с парящими ступенями, обрамленной посадками. Она была «растворена» среди деревьев, органично связывая сад с лесом и оставаясь при этом приватной. Для комфортного отдыха в любую погоду была построена просторная гриль-беседка. Ее ключевая особенность — система полного открывания окон. В хорошую погоду это создает эффект «безбарьерного пространства», стирая границу между интерьером и садом, наполняя беседку свежим воздухом и пейзажными видами. С южной стороны участка, там, где больше всего солнца, органично вписалась спортивная площадка. Ее особенность — современное резиновое покрытие, имитирующее цвет газона. Это решение позволяет объекту не выбиваться из общей цветовой палитры сада, сохраняя визуальную целостность ландшафта. Особый шарм и уют саду придают многочисленные скрытые ниши по всему участку, организованные между волнообразными линиями цветников. Каждая такая ниша — это отдельная маленькая комната под открытым небом, надежно укрытая от посторонних глаз. Здесь было найдено место и для практичной функции, такой как плодовая зона с кустарниками голубики. Озеленение было продумано как сложная, многослойная структура, обеспечивающая декоративность в течение всего сезона и создающая ощущение уединенности. Основу композиции вокруг дома составляют гортензии и котовник фассена. Структуру и ажурность самого участка задают сосны, ирга Ламарка, рябина Додонг, бересклеты а также форзиция. Яркие акценты по всему участку расставлены почвопокровными растениями: геранью розанной и мшанкой шиловидной. По всему периметру cада высажены плотные массивы пузыреплодника и дерна, выполняющие роль надежной кулисы, скрывающей территорию от случайных взглядов и создающей насыщенный зеленый фон. Сегодня «Тайный сад в Заполье» — это состоявшаяся, живая экосистема. Проект, начавшийся с чистого листа, достиг своей главной цели: он не выглядит «новым» или «сделанным». Создалось ощущение, что он был здесь всегда. Сад живет своей жизнью, меняется в течение сезонов, принимает лесных гостей и дарит своим владельцам именно то, что было задумано — чувство защищенности, покоя и причастности к маленькому чуду, надежно скрытому от внешнего мира.
ХВОЯ ландшафт

Проект небольшого одноэтажного дома.
ПРОЕКТ 1 ЭТАЖНОГО КОТТЕДЖА, РАСПОЛОЖЕННОГО ПО АДРЕСУ: ВОЛГОГРАДСКАЯ ОБЛАСТЬ, СРЕДНЕАХТУБИНСКИЙ РАЙОН, ДНП "ВЛАДИМИРСКАЯ СЛОБОДА". . . Проект коттеджа и посадка здания на участок разработаны, на основании задания на проектирование, межевого плана, градостроительного плана, предоставленного заказчиком, все планировочные решения согласованы с заказчиком. . . . Проект постройки выполнен с учетом максимального сохранения рельефа местности. . . . Проектируемое новое здание 1 этажного коттеджа в осях А - Е (12,0 м); 1 - 6 (15,3 м) - состоит из основного объема здания проектируемого коттеджа, главного центрального крыльца, и главной входной группы, чуть утопленной вглубь здания, расположенной в осях 3-4/А-Б. . Кровля - холодный чердак, утепление которого выполнено по Ж/Б плитам перекрытия. . Высотные отметки этажей: . 1 этаж - ±0.000. . За относительную отметку ±0.000 принята отметка ЧИСТОГО ПОЛА ПЕРВОГО ЭТАЖА. . . Объемно-пространственное решение жилого дома было определено заданием на проектирование: запроектировать в современных архитектурных и конструктивных решениях с применением передовых строительных технологий, конструктивных и отделочных материалов. . . Проектируемое новое здание 1 этажного коттеджа в осях А - Е (12,0 м); 1 - 6 (15,3 м) - состоит из основного объема здания проектируемого коттеджа, главного центрального крыльца, и главной входной группы, чуть утопленной вглубь здания, расположенной в осях 3-4/А-Б. . Проект этого современного одноэтажного дома удобен и функционален. Его экстерьер выполнен в комбинированных тонах. Использован светлый кирпич и архитектурный декор. Окна, водосточная система - Цвет RAL 7024 (Графитовый серый). . . В проекте использован керамический облицовочный кирпич светлого оттенка. Кирпич - керамический облицовочный, одинарный, Размер - 250*120*65мм, с утолщенной лицевой стенкой, Марка прочности кирпича - М150(М175), Водопоглощение - 6-8 %, Морозостойкость - F100. . Цокольная часть дома облицована - Кирпич керамический РИГЕЛЬНЫЙ лицевой Цвет: Коричневый; Оттенок: пестрый; Поверхность: рифленая; Формовка: ручная работа; Пустотность: полнотелый; Размер: 475х85х40 мм; Прочность на сжатие: 400 кгс/см²; Марка по морозостойкости: F100; Водопоглощение: 4,0 %; Коэффициент теплопроводности: 0,670 Вт/(м°C); Вес: 3,40 кг. . . Внутреннее пространство коттеджа поделено на дневную и ночную зоны. Первая находится в левой части дома, относительно главного фасада, просторный гостевой зал, объединяющий холл, гостиную, столовую и кухню. . Также на первом этаже запроектированы: гостевая спальня, хозяйская спальня и детская, санузел, котельная. Зайдя в тамбур, слева есть возможность расположить шкаф для вещей. Вход в дом осуществляется через тамбур. В тамбур можно попасть с главного входа. Тем самым грязная зона находится в одном помещении. Гараж запроектирован на два парковочных места. Так же внутри дома расположена котельная, которая имеет вход со стороны тамбура. . . Длинные и непрактичные коридоры отсутствуют. Что добавляет больше полезной площади помещениям. . По проекту дом рассчитан на всесезонную эксплуатацию и может использоваться для постоянного проживания большой семьи. . . Достаточное количество света в помещениях обеспечено большой площадью остекления. Просторная светлая гостиная кажется еще больше за счет большой зоны остекления, а также плавного перехода столовой зоны и кухни в гостиную. . Четкое разделения зон не создает ощущение дискомфорта в повседневной жизни. . . Проект дома отличается особой продуманностью конструктивных решений. В их основе лежат идеи рациональности и максимального комфорта. . Оригинальным образом сочлененные жилые и подсобные помещения, образуют эргономичное внутреннее пространство, в котором центральное место отведено просторной гостиной. Высота потолков первого этажа 3,0 метра создают максимальное ощущение комфорта, воздушности и дополнительного обьема помещениям. . Компактная, но функциональная гостиная имеет большое остекление. Благодаря остеклению, гостиной и в рабочей кухонной зоне, помещение в любое время года получает необходимое количество солнечного света. . Окна спален и помещений, защищены от излишней инсоляции низкими кровельными свесам, которые создают необходимый уровень затененности. . В качестве основного материала при строительстве коттеджа использован облицовочный керамический кирпич, обладающий прекрасными эксплуатационными свойствами – экологичностью, прочностью и долговечностью. .
Геннадий Кириченко

Шоурум AURICA
AURICA AURICA

коллекция Эланд
AURICA AURICA

коллекция Эланд
AURICA AURICA

коллекция Эланд
AURICA AURICA

коллекция Бора-Бора
AURICA AURICA

Дом в Подмосковье 170 м.кв.
Геннадий Баринов

Тосканский колорит
bon ton

Дом с баней в Завидово
Евгения Шокогоуи




