
Архитекторы
5
·
10 отзывов
Дом архитектора W_G+BET ON
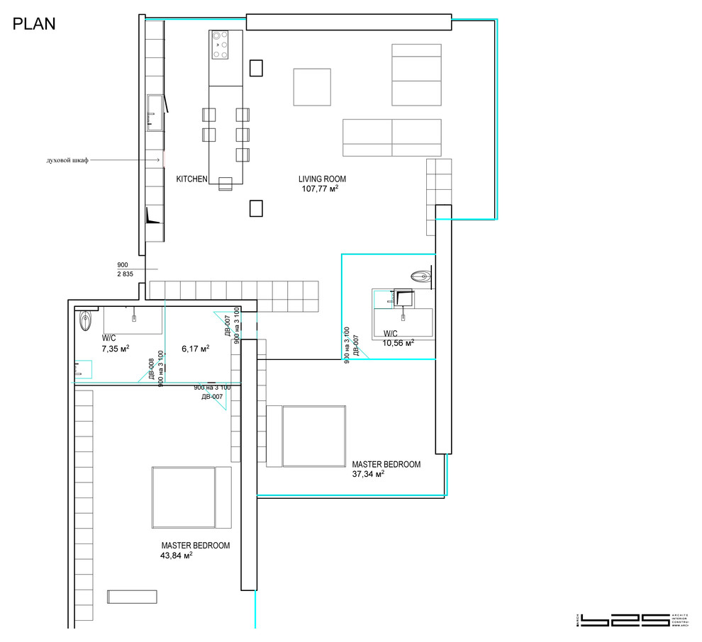
аrchitect . Sergey N A S E D K I N . ARCH.625 квартира W_G+BET ON . . [ru] . 625 A Re vel ati on : 4 +5 +6 +7 +8 +9 +10 +11 +12 +13 +14 +15 +16 +17 +18 +19 +20 +21 +22 +23 +24 +25 +26 +27 +28 +29 +30 +31 +32 +33 +34 +35 = 625 / 5 : 8 = 0 .625 [ golden section ] . . Материалы: . проектирование: ARCH.625 . общестроительные работы : REROOM . . полы . наливной полимерный пол POLI-FLORE / «Epoxy flooring» Германия RALL 9003 белый глянцевый. . . Перегородки: Josef Göbel GmbH Австрия / калёное стекло 12мм прозрачное ./ матовое, фурнитура нержавеющая сталь матовая../ стены: БЕТОН M 500. . . свет: MINIMAL 20 PRODUCT LINE компании XAL , управление по радиоканалу, 6000 Кельвинов белый нейтральный. подряд: NEON PROJECT . Торшеры нержавеющая сталь Н1800мм, Vintage Lumio Squirell Cage Thomas Alva Edison Лампа накаливания E27 60W 2700K ( тёплый) колба прозрачный GF-E-764 . . электроустановочные изделия: ABB NISSEN ZENIT серебро. . . Кухня :Josef Göbel GmbH Австрия / дизайн ARCH.625 , / белый матовый лак RALL 9003, фурнитура BLUM TIP-ON BLUMOTION, CLIP top BLUMOTION, LEGRABOX. высота фронта 3100мм. . . Кухонная бытовая Техника : MIELE / Германия . . Смесители : SEAMEN ( Россия./ Германия) Eco Koblenz SSN-2139A Материал корпуса Нержавеющая сталь AISI 304 4мм . Переключатель на фильтр. Мойка SEAMEN Материал корпуса Нержавеющая сталь AISI 304 2мм . . . Стол : ETHNICRAFT Slice 3200х1100 мм массив тика, без покрытия. Бельгия. . . Стулья : POLY прозрачный .Дизайн: 2007 год, Karim Rashid / BONALDO Италия . . Стеллажи : Josef Göbel GmbH Австрия / дизайн ARCH.625 ./ дуб натур, матовый лак.,/ шкафы матовый лак RALL 9003, фурнитура BLUM TIP-ON BLUMOTION, CLIP top BLUMOTION, LEGRABOX Н=3100мм. . . кровать: Josef Göbel GmbH Австрия / дизайн ARCH.625 ./ дуб натур, матовый лак.. спинка- калёное стекло 10мм прозрачное. . . . Диван: Josef Göbel GmbH Австрия / дизайн ARCH.625 ./ Материал 100% Лён натуральный белый RALL 9003. TBM ( Италия ) В верхнюю часть сидения добавлен негорючий пух-перо с эффектом «медленного утопания » и усадкой не более 5% после 50000 сжатий . . . . . Ванная Комната : Смеситель SEAMEN Eco Glasgow SSN-3026 (Россия./ Германия) Материал корпуса Нержавеющая сталь. AISI 304 4мм , Душевая стойка с изливом SEAMEN Eco Glasgow (Россия./ Германия) Материал корпуса Нержавеющая сталь AISI 304 4мм. ванная : VITRA, облицовка БЕТОН M 500, унитаз подвесной Metropole Rim-Eх с функцией биде и сиденьем, VITRA Metropole (7672B003-6112) . . аксессуары , текстиль: CASA Stockmann / Villa Stockmann /, ZARA Home / Eichholtz Accessories./ MIELE / . RALF LAUREN HOME/. MISSONI home/ . . Бытовая техника: BANG & OLUFSEN BeoVision Avant 55 Дизайнер Torsten Valeur / BeoLab 09 – культовая акустическая колонка . .
Другие фотографии в проекте
Вопросы к фото 0
Задайте вопрос
Вам ответят эксперты. Пришлем уведомление, когда вам ответят




