
Архитекторы
4.78
·
10 отзывов
Дом архитектора
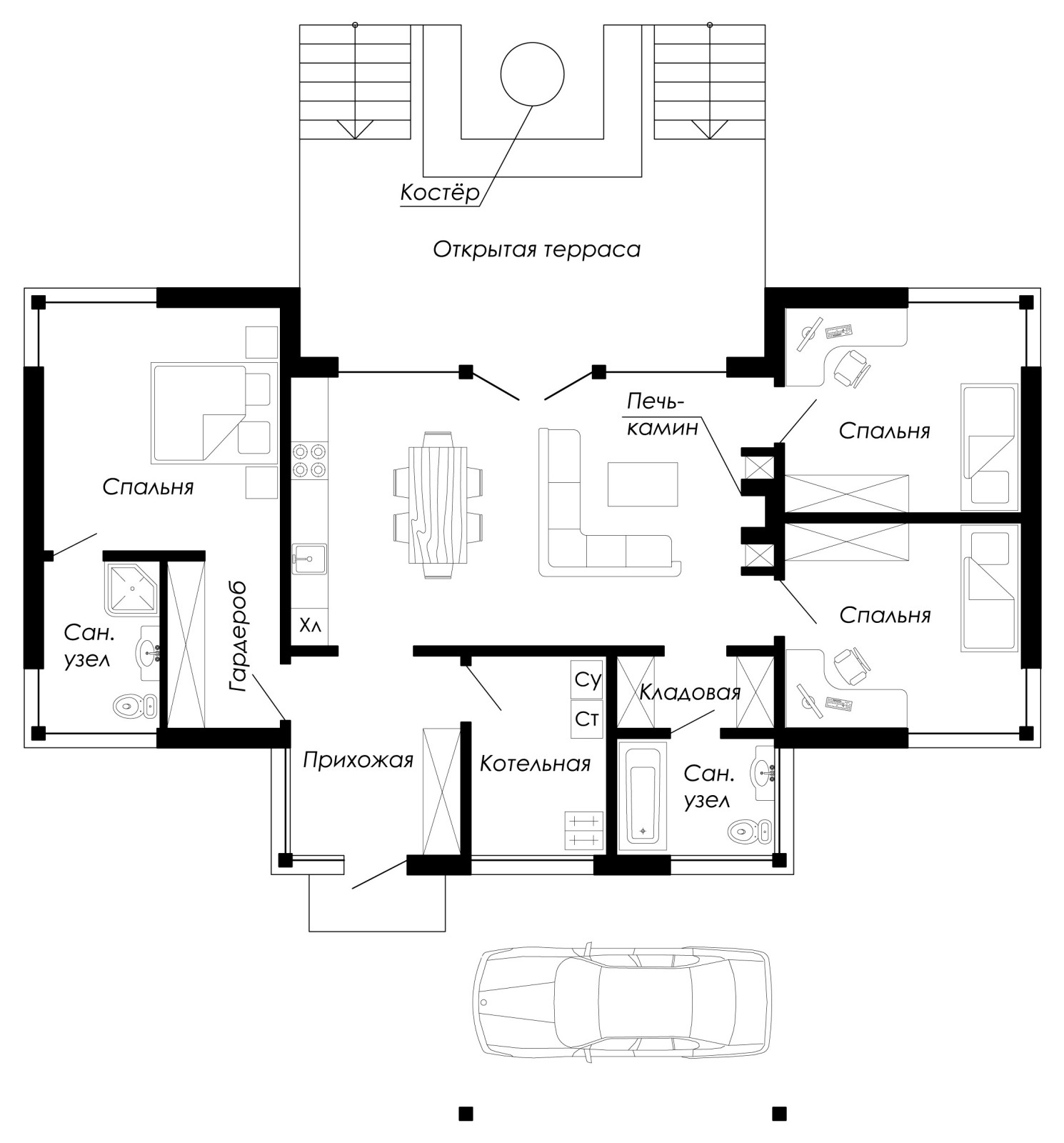
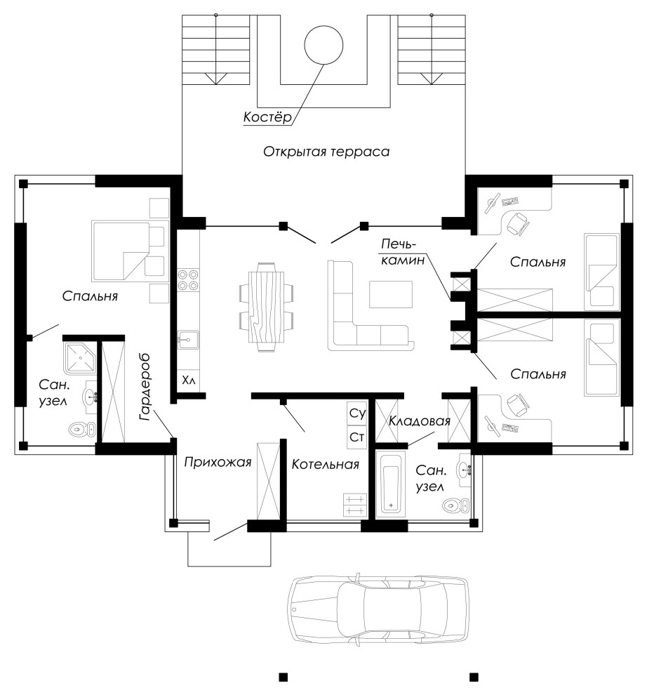
Дом спроектирован для долговременного периодического проживание 3-4 человек. Главным центром дома является общая зона гостиной-кухни-столовой. Это помещение просторное, светлое (с панорамными окнами) и высокое (со вторым светом). Снаружи вдоль этой зоны вытянулась терраса с выходом на неё из гостиной. Терраса открытая (без кровли), но с перголой, которая защищает от солнца, как саму террсау, так и гостиную. Для защиты от интенсивного крымского солнца также служат и большие выносы кровли по периметру всего дома.
Другие фотографии в проекте
Вопросы к фото 0
Задайте вопрос
Вам ответят эксперты. Пришлем уведомление, когда вам ответят




