
Проектирование и строительство
5
·
2 отзыва
Долина
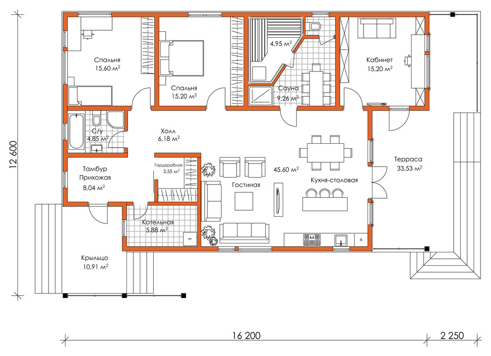
Площадь дома: 135 м² . Площадь террас: 44 м² . Кол-во этажей: 1 . Кол-во спален: 2 . Кол-во санузлов: 1 . . Одноэтажный загородный дом лаконичный по архитектурному и простой по планировочному решению. Этот деревянный дом отлично подходит как для проживания семьи из 3-х и более человек и размещения гостей, так и в качестве основной постройки. Внешний фасад дома несет в себе природную естественность дерева. . . Архитектор - Виталий Харитошин
Другие фотографии в проекте
1 раз сохранено в статьи и альбомы идей:
Добавил(-а) в альбом: Ок
Вопросы к фото 0
Задайте вопрос
Вам ответят эксперты. Пришлем уведомление, когда вам ответят


