
Архитекторы
0
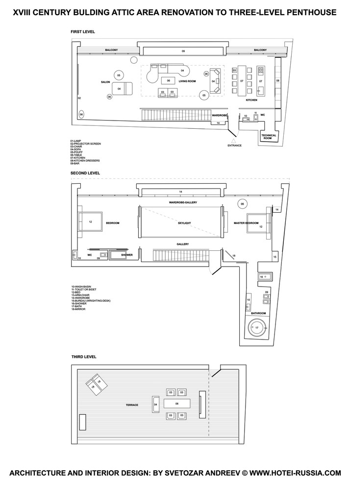
Вилла На Крыше От Архитектора Светозара Андреева
Architect and Interior Designer: Svetozar Andreev / Архитектор и Дизайнер Интерьера: Светозар Андреев / Copyrignt © www.hotei-russia.com
Другие фотографии в проекте
Вопросы к фото 0
Задайте вопрос
Вам ответят эксперты. Пришлем уведомление, когда вам ответят




