
Ремонт и отделка квартир и домов
4.96
·
760 отзывов
Дизайнерский ремонт студии
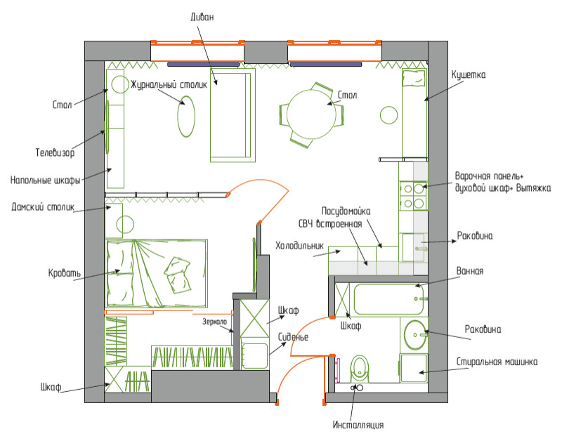
Планировочное решение студии 43 кв.
Другие фотографии в проекте
Вопросы к фото 0
Задайте вопрос
Вам ответят эксперты. Пришлем уведомление, когда вам ответят

Ремонт и отделка квартир и домов
4.96
·
760 отзывов
Планировочное решение студии 43 кв.
Другие фотографии в проекте
Вам ответят эксперты. Пришлем уведомление, когда вам ответят