
Cтудия дизайна интерьера KV-Design
Дизайнеры интерьера
5
·
10 отзывов
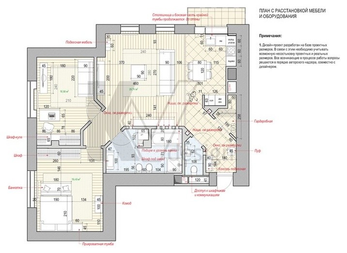
Дизайн трёхкомнатной квартиры на Сухаревской
Стилистика всех помещений получилась единой. Цветовая гамма, состоящая из шоколадных, песочных и молочных оттенков, характерна для всех комнат. Выбор основного цвета стен был сделан в пользу бежевых оттенков.
Другие фотографии в проекте
Вопросы к фото 0
Задайте вопрос
Вам ответят эксперты. Пришлем уведомление, когда вам ответят
Похожие фотографии

Мытнинская ул., 100 кв.м
На фото: кабинет в современном стиле
Дмитрий Кашемиров

КОМНАТА МЕЧТЫ ДЛЯ ДЕВОЧКИ-ПОДРОСТКА: ИДЕАЛЬНЫЙ ДИЗАЙН
На фото: кабинет в современном стиле
SDM

Резиденция композиторов
Источник вдохновения для домашнего уюта: кабинет в современном стиле
A&ES

Квартира в Долгопрудном. 2022
Пример оригинального дизайна: кабинет в современном стиле
Константин Малюта

ЖК Западный Порт
На фото: кабинет в современном стиле
Мария Ничипоренко

ЖК Западный Порт
На фото: кабинет в современном стиле
Мария Ничипоренко

Лаконичная квартира в ЖК "Пресня Сити"
Источник вдохновения для домашнего уюта: кабинет в современном стиле
Ольга Поспелова

Квартира в Z House
Свежая идея для дизайна: кабинет в современном стиле - отличное фото интерьера
Filipp Filipovich

мСокол (реализация)
Источник вдохновения для домашнего уюта: кабинет в стиле неоклассика (современная классика) с разноцветными стенами, паркетным полом среднего тона, встроенным рабочим столом, коричневым полом и обоями на стенах
Ира Носова

Квартира на Аэропорте
На фото: маленькое рабочее место в современном стиле с серыми стенами, темным паркетным полом, встроенным рабочим столом и коричневым полом для на участке и в саду с
MO interior design

Кабинеты и домашние офисы
На фото: кабинет среднего размера в скандинавском стиле с
Екатерина Владимирова

BE_Некрасова
Пример оригинального дизайна: маленькое рабочее место с серыми стенами, паркетным полом среднего тона, встроенным рабочим столом и обоями на стенах для на участке и в саду
Елена Бунак




