logo
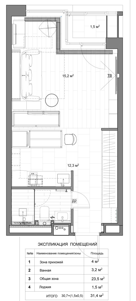
Дизайн проект квартиры-студии 32 м2

Другие фотографии в проекте Дизайн проект квартиры-студии 32 м2

Дизайн проект квартиры-студии 32 м2
Дизайн проект квартиры-студии 32 м2
Дизайн проект квартиры-студии 32 м2
Дизайн проект квартиры-студии 32 м2

Вопросы к фото 0

Задайте вопрос

Вам ответят эксперты. Пришлем уведомление, когда вам ответят